2 rok, 49 m²
Lgh 2-1-1204
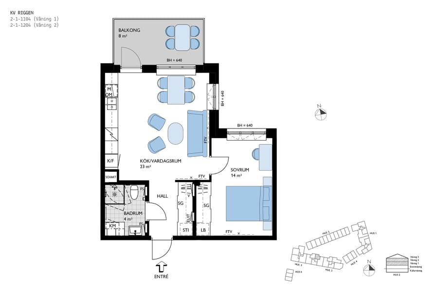
Två rum och kök om 49 kvm med härlig balkong mot gården. Modern planlösning med kök och vardagsrum i öppen planlösning. Sovrum med plats för dubbelsäng. Badrum med kombimaskin. Hall med bra förvaring i skjutdörrsgarderob. Bostaden är inredd med kök från Vedum i stilren design och vitvaror från Siemens. Köket är utrustat med kyl/frys, induktionshäll och integrerad diskmaskin samt ugn och mikrovågsugn. Helkaklat badrum med inredning från INR och spotlightbelysning i tak. ¨
I månadsavgiften inkluderas uppvärmning, kallvatten samt allmän renhållning i föreningen. För 220 kr/mån får man dessutom fiber, IP-telefoni (fasta delen) och kabel-TV via Telia, vilket är kollektivt upphandlat av föreningen. Varje lägenhet debiteras utefter hur mycket varmvatten man förbrukar vilket är miljösmart och praktiskt.
Två rum och kök om 49 kvm med härlig balkong mot gården. Modern planlösning med kök och vardagsrum i öppen planlösning. Sovrum med plats för dubbelsäng. Badrum med kombimaskin. Hall med bra förvaring i skjutdörrsgarderob. Bostaden är inredd med kök från Vedum i stilren design och vitvaror från Siemens. Köket är utrustat med kyl/frys, induktionshäll och integrerad diskmaskin samt ugn och mikrovågsugn. Helkaklat badrum med inredning från INR och spotlightbelysning i tak. ¨
I månadsavgiften inkluderas uppvärmning, kallvatten samt allmän renhållning i föreningen. För 220 kr/mån får man dessutom fiber, IP-telefoni (fasta delen) och kabel-TV via Telia, vilket är kollektivt upphandlat av föreningen. Varje lägenhet debiteras utefter hur mycket varmvatten man förbrukar vilket är miljösmart och praktiskt.
















