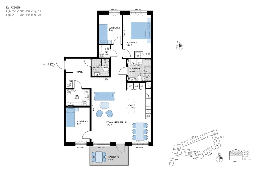
4 rok, 107 m²
Genomgående fyra om 107 kvm med balkong i söder mot Kanaltorget. Kök och vardagsrum i öppen planlösning med möjlighet till köksö. Badrum med tvättmaskin och torktumlare. Hall med stor klädkammare samt extra wc/dusch.
Bostaden är inredd med kök från Vedum i stilren design och vitvaror från Siemens. Köket är utrustat med kyl/frys, induktionshäll och integrerad diskmaskin samt ugn och mikrovågsugn. Helkaklat badrum med inredning från INR och spotlightbelysning i tak. Standarden är hög med bland annat vitlaserat ekgolv och helintegrerad kyl/frys. Bra förvaringslösningar med flexibla garderobssystem från Elfa och tillgång till ett förrådsutrymme i källarplan där det även finns cykelparkering.
Föreningen har en gästlägenhet som kan hyras av medlemmarna vid behov. Garage finns under huset, totalt 105 platser (varav 3 handikapp-platser och 32 laddplatser) samt 4 mc-platser. Alla lägenheter och gathus garanteras hyra minst en plats.
I månadsavgiften inkluderas uppvärmning, kallvatten samt allmän renhållning i föreningen. För 220 kr/mån får man dessutom fiber, IP-telefoni (fasta delen) och kabel-TV via Telia, vilket är kollektivt upphandlat av föreningen. Varje lägenhet debiteras utefter hur mycket varmvatten man förbrukar vilket är miljösmart och praktiskt.
När du köper en bostad av JM är det till ett fast pris. Som nyinflyttad JM-kund får du dessutom två timmars kostnadsfri hantverkshjälp när du får tillträde till din nya bostad. JM har även ett trygghetspaket med möjlighet att skjuta på tillträdet upp till sex månader samt skydd mot dubbel boendekostnad 20.000 kr/mån i upp till 6 månader. Trygghetspaket på totalt 1 år ingår helt utan någon kostnad när du köper bostad via JM.
Läget i Lomma Strandstad är lugnt och trivsamt med närhet till hav och natur. Samtidigt finns all närservice man behöver i vardagen i form av matvarubutiker, vårdcentral, frisör, skola/förskola mm. Kommunikationen till Malmö och Lund är god både för den som pendlar med bil eller kollektivtrafik.
Bostaden är inredd med kök från Vedum i stilren design och vitvaror från Siemens. Köket är utrustat med kyl/frys, induktionshäll och integrerad diskmaskin samt ugn och mikrovågsugn. Helkaklat badrum med inredning från INR och spotlightbelysning i tak. Standarden är hög med bland annat vitlaserat ekgolv och helintegrerad kyl/frys. Bra förvaringslösningar med flexibla garderobssystem från Elfa och tillgång till ett förrådsutrymme i källarplan där det även finns cykelparkering.
Föreningen har en gästlägenhet som kan hyras av medlemmarna vid behov. Garage finns under huset, totalt 105 platser (varav 3 handikapp-platser och 32 laddplatser) samt 4 mc-platser. Alla lägenheter och gathus garanteras hyra minst en plats.
I månadsavgiften inkluderas uppvärmning, kallvatten samt allmän renhållning i föreningen. För 220 kr/mån får man dessutom fiber, IP-telefoni (fasta delen) och kabel-TV via Telia, vilket är kollektivt upphandlat av föreningen. Varje lägenhet debiteras utefter hur mycket varmvatten man förbrukar vilket är miljösmart och praktiskt.
När du köper en bostad av JM är det till ett fast pris. Som nyinflyttad JM-kund får du dessutom två timmars kostnadsfri hantverkshjälp när du får tillträde till din nya bostad. JM har även ett trygghetspaket med möjlighet att skjuta på tillträdet upp till sex månader samt skydd mot dubbel boendekostnad 20.000 kr/mån i upp till 6 månader. Trygghetspaket på totalt 1 år ingår helt utan någon kostnad när du köper bostad via JM.
Läget i Lomma Strandstad är lugnt och trivsamt med närhet till hav och natur. Samtidigt finns all närservice man behöver i vardagen i form av matvarubutiker, vårdcentral, frisör, skola/förskola mm. Kommunikationen till Malmö och Lund är god både för den som pendlar med bil eller kollektivtrafik.



















