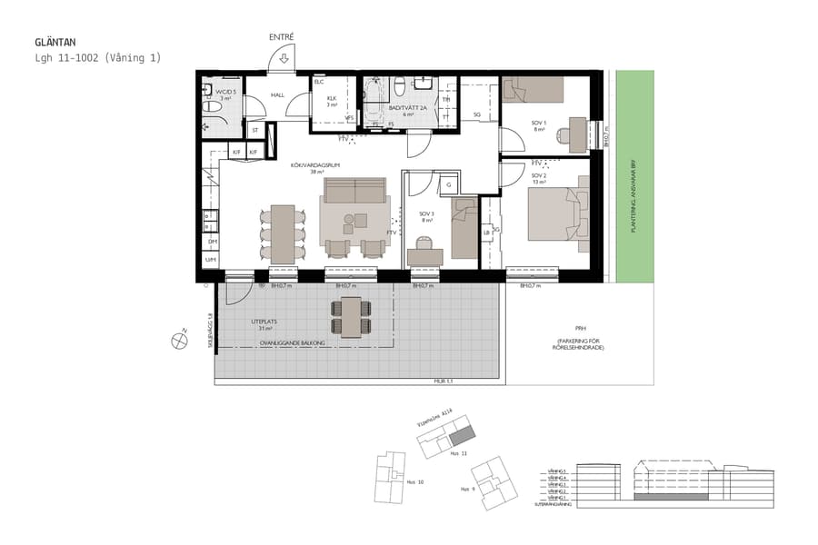
4 rok, 87 m²
Välplanerad lägenhet belägen på hörna med fyra rum och härlig uteplats om ca 31 kvm in mot gården. Vardagsrum med kök i öppet samband med utgång till uteplats i sydostläge. Klädkammare och rymliga skjutdörrsgarderober ger bra förvaringsmöjligheter. Rymligt helkaklat badrum med tvättavdelning bestående av både tvättmaskin och torktumlare. WC/dusch - dusch med glasdörr.
Lägenheten är inredd med modernt kök med vita skåpluckor och lådfronter samt en stilren grå bänkskiva. Vitvarorna är i rostfritt utförande. Köksutrustningen består av kombinerad kyl/frys, induktionshäll och helintegrerad diskmaskin samt varmluftsugn. Mikrovågsugn placeras i ett överskåp.
Badrummet är modernt och helkaklat. Stora vita väggplattor och ett grått kvadratiskt klinkergolv ger ditt badrum en harmonisk grund. Duschen skärmas av bakom glasdörrar. Energisnål tvättutrustning och JMs egendesignade torkställning John ger ditt badrum samma funktionalitet som en tvättstuga.
Alla lägenheter har tillgång till eget lägenhetsförråd i källaren, hit kommer du med hiss från alla våningsplan. Garage finns också i källarplan, separat kösystem.
Lägenheterna håller hög standard med JM originalinredning. JM har även ett trygghetspaket som bland annat innebär att du har möjlighet att skjuta fram tillträdesdagen upp till sex månader samt få skydd mot dubbel boendekostnad. Som nyinflyttad JM-kund får du dessutom två timmars kostnadsfri hantverkshjälp när du tillträder din nya bostad.
Lägenheten är inredd med modernt kök med vita skåpluckor och lådfronter samt en stilren grå bänkskiva. Vitvarorna är i rostfritt utförande. Köksutrustningen består av kombinerad kyl/frys, induktionshäll och helintegrerad diskmaskin samt varmluftsugn. Mikrovågsugn placeras i ett överskåp.
Badrummet är modernt och helkaklat. Stora vita väggplattor och ett grått kvadratiskt klinkergolv ger ditt badrum en harmonisk grund. Duschen skärmas av bakom glasdörrar. Energisnål tvättutrustning och JMs egendesignade torkställning John ger ditt badrum samma funktionalitet som en tvättstuga.
Alla lägenheter har tillgång till eget lägenhetsförråd i källaren, hit kommer du med hiss från alla våningsplan. Garage finns också i källarplan, separat kösystem.
Lägenheterna håller hög standard med JM originalinredning. JM har även ett trygghetspaket som bland annat innebär att du har möjlighet att skjuta fram tillträdesdagen upp till sex månader samt få skydd mot dubbel boendekostnad. Som nyinflyttad JM-kund får du dessutom två timmars kostnadsfri hantverkshjälp när du tillträder din nya bostad.




















