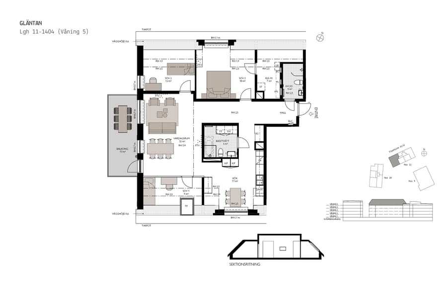
4 rok, 122 m²
Fantastisk gavellägenhet om hela 122 kvm, högst upp i huset och med fönster i tre väderstreck. Separat kök med matplats vid fönster och vardagsrum med utgång till balkong om 13 kvm i sydvästläge. Härlig takhöjd i vardagsrumsdel om 3,4 m. Två helkaklade badrum med komfortgolvvärme varav det ena med tvättavdelning bestående av både tvättmaskin och torktumlare. Lägenheten är enligt planritning 4 rok men disponeras idag som 3 rok. Gardiner och gardinstång monterade i vardagsrum ingår vid köp.
Lägenheten är inredd med modernt kök med vita skåpluckor och lådfronter samt en stilren grå bänkskiva. Vitvarorna är i rostfritt utförande. Köksutrustningen består av kombinerad kyl/frys, induktionshäll och helintegrerad diskmaskin samt varmluftsugn. Mikrovågsugn placeras i ett överskåp.
Badrummet är modernt och helkaklat. Stora vita väggplattor och ett grått kvadratiskt klinkergolv ger ditt badrum en harmonisk grund. Duschen skärmas av bakom en stilren vägg i glas. Energisnål tvättutrustning och JMs egendesignade torkställning John ger ditt badrum samma funktionalitet som en tvättstuga. Båda badrummen har även komfortgolvvärme.
Alla lägenheter har tillgång till eget lägenhetsförråd, denna bostad har förråd på samma våningsplan som lägenheten. Garage finns också i källarplan, separat kösystem.
Lägenheterna håller hög standard med JM originalinredning. JM har även ett trygghetspaket som bland annat innebär att du har möjlighet att skjuta fram tillträdesdagen upp till sex månader samt få skydd mot dubbel boendekostnad. Som nyinflyttad JM-kund får du dessutom två timmars kostnadsfri hantverkshjälp när du tillträder din nya bostad.
Lägenheten är inredd med modernt kök med vita skåpluckor och lådfronter samt en stilren grå bänkskiva. Vitvarorna är i rostfritt utförande. Köksutrustningen består av kombinerad kyl/frys, induktionshäll och helintegrerad diskmaskin samt varmluftsugn. Mikrovågsugn placeras i ett överskåp.
Badrummet är modernt och helkaklat. Stora vita väggplattor och ett grått kvadratiskt klinkergolv ger ditt badrum en harmonisk grund. Duschen skärmas av bakom en stilren vägg i glas. Energisnål tvättutrustning och JMs egendesignade torkställning John ger ditt badrum samma funktionalitet som en tvättstuga. Båda badrummen har även komfortgolvvärme.
Alla lägenheter har tillgång till eget lägenhetsförråd, denna bostad har förråd på samma våningsplan som lägenheten. Garage finns också i källarplan, separat kösystem.
Lägenheterna håller hög standard med JM originalinredning. JM har även ett trygghetspaket som bland annat innebär att du har möjlighet att skjuta fram tillträdesdagen upp till sex månader samt få skydd mot dubbel boendekostnad. Som nyinflyttad JM-kund får du dessutom två timmars kostnadsfri hantverkshjälp när du tillträder din nya bostad.




















