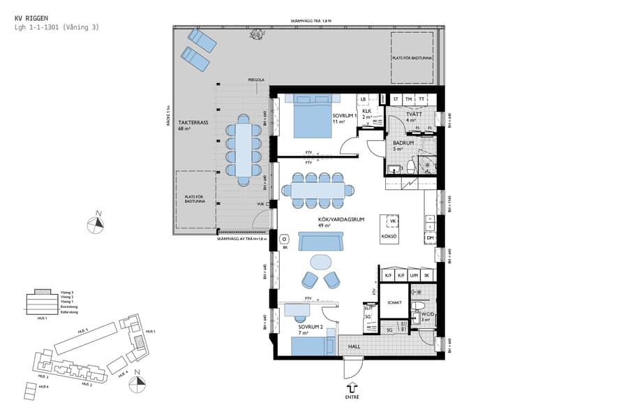
3 rok, 94 m²
Välkommen till denna exklusiva trerummare om 94 kvm med riktig wow-känsla. Lägenheter erbjuder allt som en Penthouse-våning innebär med öppen planlösning mellan kök och vardagsrum, generösa fönsterpartier med genomgående ljusinsläpp och en takterrass om hela 68 kvm. Terrassen är smart placerad för att maximera soltimmarna och har utsikt både mot föreningens fina innergård i västerläge och mot Hamnallén i österläge. I och med den väl tilltagna ytan på takterrassen så finns här utrymme för en trevlig pergola och för den som vill göra tillval med badtunna så har man förberett en yta för det också. I Penthouse-våningarna har man en härlig takhöjd om 2,7 meter vilket bidrar till den luftiga känslan. Det kombinerade kök/vardagsrummet är häpnadsväckande i sin utformning med en centralt placerad braskamin och köksö som avgränsar men samtidigt bibehåller den sociala känslan. Här finns en generös hall med bra förvaring och ett rymligt sovrum med klädkammare. Sovrum nummer två är ett frånvalsrum om man önskar att göra kök/vardagsrum ännu större. Som en extra bonus har denna våning både gäst-wc med dusch, ett stort badrum med dusch och ett separat tvättutrymme som nås via det stora badrummet.
I månadsavgiften inkluderas uppvärmning, kallvatten samt allmän renhållning i föreningen. För 220 kr/mån får man dessutom fiber, IP-telefoni (fasta delen) och kabel-TV via Telia, vilket är kollektivt upphandlat av föreningen. Varje lägenhet debiteras utefter hur mycket varmvatten man förbrukar vilket är miljösmart och praktiskt.
I månadsavgiften inkluderas uppvärmning, kallvatten samt allmän renhållning i föreningen. För 220 kr/mån får man dessutom fiber, IP-telefoni (fasta delen) och kabel-TV via Telia, vilket är kollektivt upphandlat av föreningen. Varje lägenhet debiteras utefter hur mycket varmvatten man förbrukar vilket är miljösmart och praktiskt.
















