3 rok, 75 m²
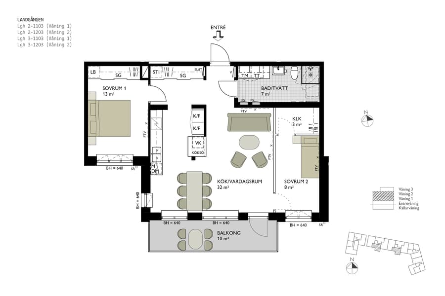
Välplanerad ägarlägenhet på vån 2 om 3 rok på 75 kvm med generös balkong i söder mot den trevliga kvartersgården. Kök och vardagsrum i öppen planlösning med möjlighet till större vardagsrum då planlösningen är flexibel. Mycket bra förvaring i klädkammare och skjutdörrsgarderober i både hall och sovrum. Bekvämlighet i badrum med både tvättmaskin och torktumlare och plats för badkar (inredningsval). Bostaden är inredd med kök från Vedum i stilren design och vitvaror från Electrolux. I kvarteret kommer det finnas tillgång till både en gemensam takterrass och en bokningsbar gästlägenhet. Förråd tillhör lägenheten. I avgiften till samfällighetsföreningen ingår följande: Värme, varm-och kallvatten (Schablonkostnad för varm- och kallvatten. Mätning av förbrukning gällande kall-och varmvatten sker och lägenhetsinnehavare kommer att debiteras efter verklig förbrukning), renhållning, avsättning underhåll, förvaltning (teknisk samt ekonomisk), gemensam el, fastighetsförsäkring, serviceavtal, administration och mätaravgifter. Även garage eller markparkering ingår.
















