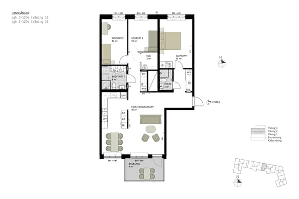
4 rok, 109 m²
Genomgående och välplanerad ägarlägenhet i entréplan om 4 rok på 109 kvm med stor uteplats mot gården. Öppen planlösning med kök och vardagsrum vilket ger generösa sällskapsytor. Här har man förvaring i både klädkammare och skjutdörrsgarderob. Stor bekvämlighet med både tvättmaskin och torktumlare i badrum samt plats för badkar som inredningsval. Bostaden erbjuder även extra wc/dusch. Det finns möjlighet att välja bort sovrum då planlösningen är flexibel. Bostaden är inredd med kök från Vedum i stilren design och vitvaror från Electrolux. I kvarteret kommer det finnas tillgång till både en gemensam takterrass och en bokningsbar gästlägenhet. Förråd tillhör lägenheten. I avgiften till samfällighetsföreningen ingår följande: Värme, varm-och kallvatten (Schablonkostnad för varm- och kallvatten. Mätning av förbrukning gällande kall-och varmvatten sker och lägenhetsinnehavare kommer att debiteras efter verklig förbrukning), renhållning, avsättning underhåll, förvaltning (teknisk samt ekonomisk), gemensam el, fastighetsförsäkring, serviceavtal, administration och mätaravgifter. Även garage eller markparkering ingår.

















