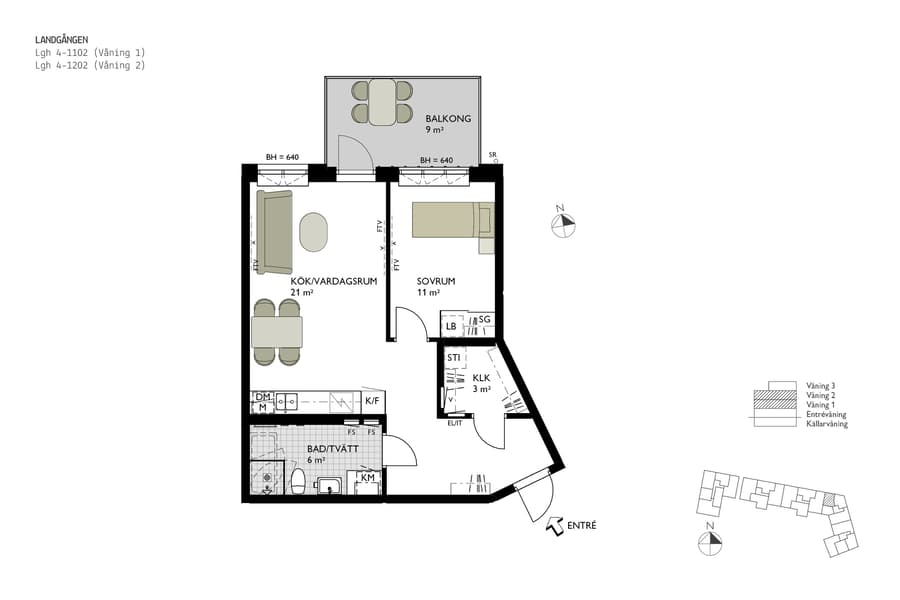
2 rok, 54 m²
Tvåa med härlig balkong mot Sjögatan. Inbjudande och öppen planlösning. Bra förvaring i klädkammare och skjutdörrsgarderob. Badrum med kombimaskin. Bostaden är inredd med kök från Vedum i stilren design och vitvaror från Electrolux. I kvarteret kommer det finnas tillgång till både en gemensam takterrass och en bokningsbar gästlägenhet. Förråd tillhör lägenheten. I avgiften till samfällighetsföreningen ingår följande: Värme, varm-och kallvatten (Schablonkostnad för varm- och kallvatten. Mätning av förbrukning gällande kall-och varmvatten sker och lägenhetsinnehavare kommer att debiteras efter verklig förbrukning), renhållning, avsättning underhåll, förvaltning (teknisk samt ekonomisk), gemensam el, fastighetsförsäkring, serviceavtal, administration och mätaravgifter. Även garage eller markparkering ingår.















