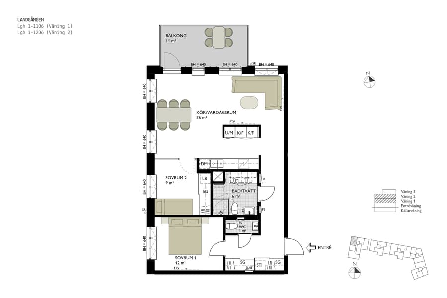
3 rok, 79 m²
På bra hörnläge finns denna välplanderade ägarlägenhet om 3 rok på 79 kvm med balkong mot Sjögatan. Här har man generösa sällskapsytor då planlösningen är öppen. Badrum med plats för badkar (inredningsval) samt tvättmaskin och torktumlare samt extra gäst-wc. Här finns möjlighet till större vardagsrum då planlösningen är flexibel. Bostaden är inredd med kök från Vedum i stilren design och vitvaror från Electrolux. I kvarteret kommer det finnas tillgång till både en gemensam takterrass och en bokningsbar gästlägenhet. Förråd tillhör lägenheten. I avgiften till samfällighetsföreningen ingår följande: Värme, varm-och kallvatten (Schablonkostnad för varm- och kallvatten. Mätning av förbrukning gällande kall-och varmvatten sker och lägenhetsinnehavare kommer att debiteras efter verklig förbrukning), renhållning, avsättning underhåll, förvaltning (teknisk samt ekonomisk), gemensam el, fastighetsförsäkring, serviceavtal, administration och mätaravgifter. Även garage eller markparkering ingår.













