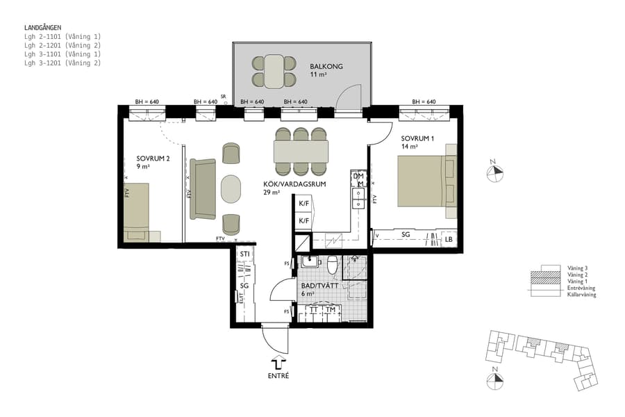
3 rok, 66 m²
Yteffektiv ägarlägenhet på våning 2 om 3 rok på 66 kvm med inbjudande och öppen planlösning med kök och vardagsrum. Trevligt kök i vinkel. Balkong där man har utblick mot Sjögatan. Stor skjutdörrsgarderob i hall samt i sovrum. Bekvämlighet i badrum med både tvättmaskin och torktumlare. Bostaden är inredd med kök från Vedum i stilren design och vitvaror från Electrolux. I kvarteret kommer det finnas tillgång till både en gemensam takterrass och en bokningsbar gästlägenhet. Förråd tillhör lägenheten. I angiven månadsavgift till samfällighetsföreningen ingår följande: Värme, varm-och kallvatten, renhållning, avsättning till underhåll, förvaltning (teknisk och ekonomisk), fastighetsförsäkring, serviceavtal, administration och mätaravgifter. (Schablonkostnad för förbrukning av varm- och kallvatten är inräknad i månadsavgiften. Mätning av förbrukningen sker löpande och lägenhetsinnehavare debiteras efter verklig förbrukning). Garageplats ingår i månadsavgiften.
















