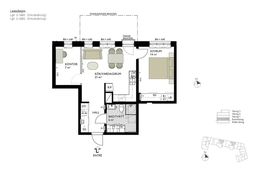
2 rok, 55 m²
Yteffektiv ägarlägenhet om 2 rok på 55 kvm i entréplan med inbjudande och öppen planlösning med kök och vardagsrum. Från den franska balkongen i vardagsrummet har man utblick mot Sjögatan. Här finns möjlighet till ett större vardagsrum eller ett extra sovrum, kontor/klädkammare. Bra förvaring finns i skjutdörrsgarderober i både sovrum och hall. Bekvämlighet med tvättmaskin och torktumlare i badrum samt plats för badkar som inredningsval.
Bostaden är inredd med kök från Vedum i stilren design och vitvaror från Electrolux. I kvarteret kommer det finnas tillgång till både en gemensam takterrass och en bokningsbar gästlägenhet. Förråd tillhör lägenheten. I avgiften till samfällighetsföreningen ingår följande: Värme, varm-och kallvatten (Schablonkostnad för varm- och kallvatten. Mätning av förbrukning gällande kall-och varmvatten sker och lägenhetsinnehavare kommer att debiteras efter verklig förbrukning), renhållning, avsättning underhåll, förvaltning (teknisk samt ekonomisk), gemensam el, fastighetsförsäkring, serviceavtal, administration och mätaravgifter. Även garage eller markparkering ingår.
Bostaden är inredd med kök från Vedum i stilren design och vitvaror från Electrolux. I kvarteret kommer det finnas tillgång till både en gemensam takterrass och en bokningsbar gästlägenhet. Förråd tillhör lägenheten. I avgiften till samfällighetsföreningen ingår följande: Värme, varm-och kallvatten (Schablonkostnad för varm- och kallvatten. Mätning av förbrukning gällande kall-och varmvatten sker och lägenhetsinnehavare kommer att debiteras efter verklig förbrukning), renhållning, avsättning underhåll, förvaltning (teknisk samt ekonomisk), gemensam el, fastighetsförsäkring, serviceavtal, administration och mätaravgifter. Även garage eller markparkering ingår.















