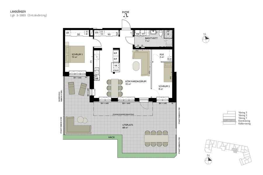
3 rok, 75 m²
31003 Ägarlägenhet i entréplan om 3 rok på 75 kvm och med mycket generös uteplats i söder mot den trevliga kvartersgården. Bra förvaring i klädkammare samt i skjutdörrsgarderober både i sovrum och hall. I badrum finns plats för badkar som inredningsval samt både tvättmaskin och torktumlare. Planlösningen är flexibel med möjlighet att få ett större vardagsrum. Bostaden är inredd med kök från Vedum i stilren design och vitvaror från Electrolux. I kvarteret kommer det finnas tillgång till både en gemensam takterrass och en bokningsbar gästlägenhet. Förråd tillhör lägenheten. I avgiften till samfällighetsföreningen ingår följande: Värme, varm-och kallvatten (Schablonkostnad för varm- och kallvatten. Mätning av förbrukning gällande kall-och varmvatten sker och lägenhetsinnehavare kommer att debiteras efter verklig förbrukning), renhållning, avsättning underhåll, förvaltning (teknisk samt ekonomisk), gemensam el, fastighetsförsäkring, serviceavtal, administration och mätaravgifter. Även garage eller markparkering ingår.













