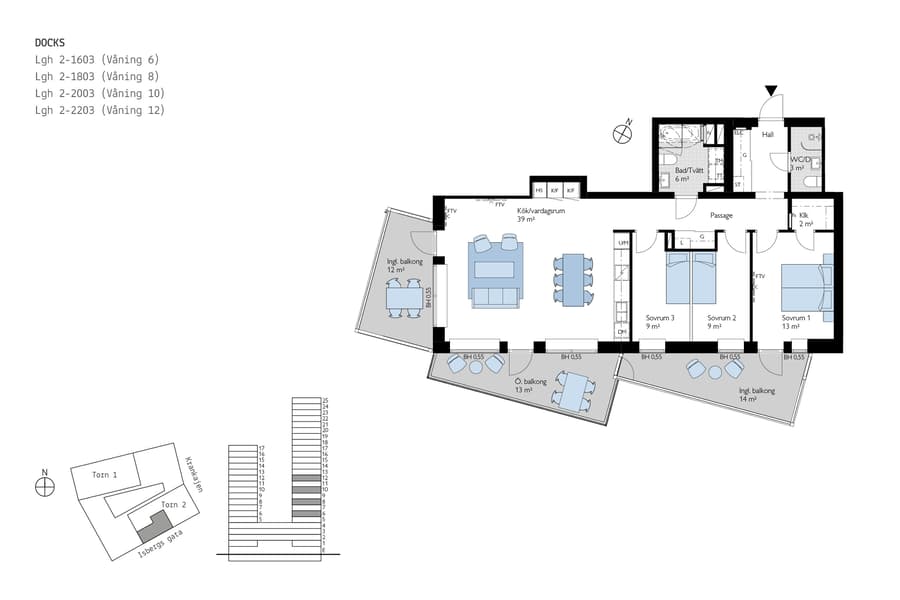
4 rok, 99 m²
Malmö kommun / Dockan / Docks
Härlig fyra med stora sociala ytor, fullutrustat kök i öppen planlösning och tre balkonger. Två av balkongerna är inglasade och en är öppen. Bostaden erbjuder tre rymliga sovrum och genomtänkt förvaring. Badrum med tvätt- och torkmöjligheter samt gäst-wc med dusch.
Lägenheten är belägen på våning åtta och håller en hög standard, med genomtänkt inredning, fina materialval och smarta lösningar. Bostaden stoltserar med ett funktionellt kök från kvalitativa köksleverantören Vedum. Köket matchas elegant med stilren bänkskiva och med rostfria vitvaror från Electrolux.
Till lägenheten hör ett eget förråd, föreningen har även ett cykelförråd och två övernattningslägenheter som går att boka när du får besök. Föreningen har även en gemensam bostadsgård/takterrass belägen på våning sex.
När du köper bostad genom JM ingår dessutom ett trygghetspaket som bland annat inkluderar tillträdesskydd och skydd för dubbla boendekostnader – allt för att du som köpare ska känna dig trygg.
Vissa lever vanligt, andra lever upp
Lägenheten är belägen på våning åtta och håller en hög standard, med genomtänkt inredning, fina materialval och smarta lösningar. Bostaden stoltserar med ett funktionellt kök från kvalitativa köksleverantören Vedum. Köket matchas elegant med stilren bänkskiva och med rostfria vitvaror från Electrolux.
Till lägenheten hör ett eget förråd, föreningen har även ett cykelförråd och två övernattningslägenheter som går att boka när du får besök. Föreningen har även en gemensam bostadsgård/takterrass belägen på våning sex.
När du köper bostad genom JM ingår dessutom ett trygghetspaket som bland annat inkluderar tillträdesskydd och skydd för dubbla boendekostnader – allt för att du som köpare ska känna dig trygg.
Vissa lever vanligt, andra lever upp



















