4 rok, 89 m²
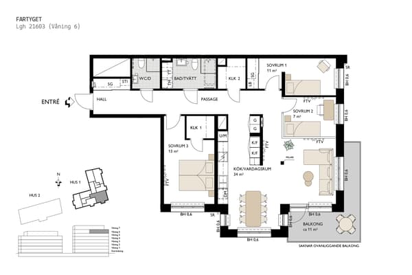
Denna fyrarumslägenhet på 89 kvm på våning fyra är ett hem som bjuder på extra mycket utrymme både inne och ute. Vardagsrummet och köket ligger i öppen anslutning till varandra och bildar en rymlig sällskapsyta för familj och vänner. Härifrån kliver du ut på den imponerande balkongen på hela 19 kvm. Den är tillräckligt stor för både matplats, loungehörna och gröna inslag som gör utemiljön till en självklar del av vardagen. Som komplement finns också en spansk balkong som bidrar med ljus och ytterligare karaktär till hemmet.
Planlösningen rymmer tre sovrum vilket gör bostaden flexibel. Det större fungerar perfekt som master bedroom, medan de två mindre kan användas som barnrum, gästrum eller arbetsrum. Två badrum gör vardagen enkel. Det större är utrustat med tvättmaskin, torktumlare, medan det mindre fungerar som en praktisk gäst-wc. Gott om förvaring i garderober och klädkammare gör att hemmet är enkelt att hålla organiserat.
Fartyget består av 89 nyproducerade bostäder med genomgående hög standard. Här ingår Vedumkök, vitvaror från Electrolux och materialval som håller över tid. Som boende har du även tillgång till garage med laddplatser, cykelhus samt både bil- och cykelpool. Dockan är en stadsdel som sjuder av liv med restauranger, caféer och mötesplatser längs vattnet, samtidigt som Malmös citykärna finns på bekvämt avstånd. Här får du en vardag där du kan kombinera puls och avkoppling på bästa sätt.
Planlösningen rymmer tre sovrum vilket gör bostaden flexibel. Det större fungerar perfekt som master bedroom, medan de två mindre kan användas som barnrum, gästrum eller arbetsrum. Två badrum gör vardagen enkel. Det större är utrustat med tvättmaskin, torktumlare, medan det mindre fungerar som en praktisk gäst-wc. Gott om förvaring i garderober och klädkammare gör att hemmet är enkelt att hålla organiserat.
Fartyget består av 89 nyproducerade bostäder med genomgående hög standard. Här ingår Vedumkök, vitvaror från Electrolux och materialval som håller över tid. Som boende har du även tillgång till garage med laddplatser, cykelhus samt både bil- och cykelpool. Dockan är en stadsdel som sjuder av liv med restauranger, caféer och mötesplatser längs vattnet, samtidigt som Malmös citykärna finns på bekvämt avstånd. Här får du en vardag där du kan kombinera puls och avkoppling på bästa sätt.














