5 rok, 105 m²
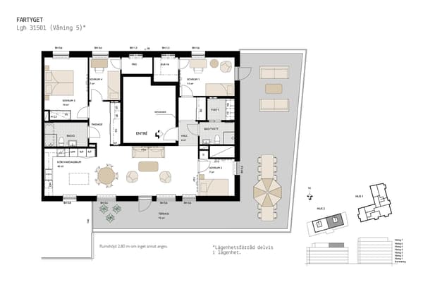
På våning sju högst upp i huset väntar en femrumslägenhet på 105 kvm som är något alldeles extra. När du stiger in möts du av ljusa och öppna ytor som genast förmedlar känslan av rymd. Här finns upp till två och åttio i takhöjd som förstärker upplevelsen av ett hem med karaktär. Vardagsrummet och köket flyter samman till en stor sällskapsyta där både vardag och fest får plats. Från vardagsrummet når du en väl tilltagen balkong som förlänger hemmet och skapar en naturlig plats för både middagar och avkoppling.
Planlösningen erbjuder fyra sovrum som ger möjlighet till både familjeliv, gästrum och hemmakontor. Två badrum gör vardagen enkel och smidig, och den genomtänkta förvaringen ger plats åt allt du behöver. Materialvalen är påkostade med stenkompositskivor i köket, massiva innerdörrar och golvvärme i badrummen. Här har inget lämnats åt slumpen utan varje detalj är vald för att skapa ett hem med långsiktig kvalitet.
Fartyget består av 89 nyproducerade bostäder där standarden är hög i varje detalj. Här får du Vedumkök, vitvaror från Electrolux och en modern inredning som håller över tid. Som boende får du dessutom tillgång till garage med laddplatser, cykelhus samt både bil- och cykelpool.
Dockan är Malmös mest attraktiva stadsdel för dig som vill leva nära både hav och city. Här väntar restauranger, kajpromenader och stadens utbud bara några minuter bort.
Planlösningen erbjuder fyra sovrum som ger möjlighet till både familjeliv, gästrum och hemmakontor. Två badrum gör vardagen enkel och smidig, och den genomtänkta förvaringen ger plats åt allt du behöver. Materialvalen är påkostade med stenkompositskivor i köket, massiva innerdörrar och golvvärme i badrummen. Här har inget lämnats åt slumpen utan varje detalj är vald för att skapa ett hem med långsiktig kvalitet.
Fartyget består av 89 nyproducerade bostäder där standarden är hög i varje detalj. Här får du Vedumkök, vitvaror från Electrolux och en modern inredning som håller över tid. Som boende får du dessutom tillgång till garage med laddplatser, cykelhus samt både bil- och cykelpool.
Dockan är Malmös mest attraktiva stadsdel för dig som vill leva nära både hav och city. Här väntar restauranger, kajpromenader och stadens utbud bara några minuter bort.











