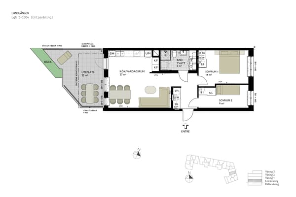
3 rok, 47 m²
Denna trea på 47 kvm är ett exempel på hur smart arkitektur kan skapa ett hem som känns större än siffrorna antyder. Vardagsrum och kök ligger i öppen anslutning till varandra vilket ger en social och trivsam mittpunkt. Från vardagsrummet når du balkongen som blir en förlängning av bostaden, perfekt för avkoppling eller en liten odling. De två sovrummen gör planlösningen flexibel och passar både för paret, den lilla familjen eller dig som vill ha ett arbetsrum hemma.
Badrummet är modernt inrett med kakel, klinker och utrustat med både tvättmaskin och torktumlare. Förvaringen är väl genomtänkt för att maximera funktionaliteten på den kompakta ytan. Det här är ett hem där varje kvadratmeter fyller sin funktion och gör vardagen enkel.
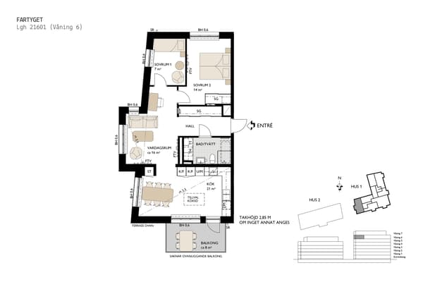
Som en del av Fartyget får du tillgång till smarta lösningar som garage med laddplatser, cykelhus samt bil- och cykelpool. Kök från Vedum och vitvaror från Electrolux borgar för kvalitet som håller över tid. Läget i Dockan gör att du har nära till allt du behöver i vardagen. Här finns service, butiker, skolor och kommunikationer på bekvämt avstånd, vilket gör boendet lika praktiskt som trivsamt.
Badrummet är modernt inrett med kakel, klinker och utrustat med både tvättmaskin och torktumlare. Förvaringen är väl genomtänkt för att maximera funktionaliteten på den kompakta ytan. Det här är ett hem där varje kvadratmeter fyller sin funktion och gör vardagen enkel.
Som en del av Fartyget får du tillgång till smarta lösningar som garage med laddplatser, cykelhus samt bil- och cykelpool. Kök från Vedum och vitvaror från Electrolux borgar för kvalitet som håller över tid. Läget i Dockan gör att du har nära till allt du behöver i vardagen. Här finns service, butiker, skolor och kommunikationer på bekvämt avstånd, vilket gör boendet lika praktiskt som trivsamt.















