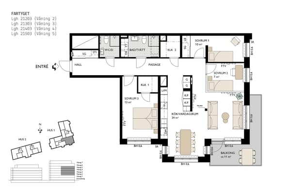
4 rok, 89 m²
På våning fyra väntar denna fyrarumslägenhet på 89 kvm som ger gott om plats för både vardag och umgänge. Det öppna vardagsrummet och köket bildar en rymlig sällskapsyta där middagar, filmkvällar och vardagliga stunder får ta plats. Härifrån når du den väl tilltagna balkongen som fungerar som ett extra rum större delen av året.
Planlösningen rymmer tre sovrum som ger flexibilitet för familj, gästrum eller hemmakontor. Det större sovrummet fungerar utmärkt som master bedroom medan de två mindre kan anpassas efter behov. Två badrum gör vardagen smidig. Det större är utrustat med tvättmaskin och torktumlare, medan det mindre fungerar som en praktisk gäst-wc. Förvaringen är välplanerad med garderober och klädkammare som gör att allt får sin plats.
Fartyget är ett nyproduktionsprojekt med 89 bostäder där kvaliteten märks i varje detalj. Här får du Vedumkök, vitvaror från Electrolux och moderna materialval som håller över tid. Som boende har du dessutom tillgång till garage med laddplatser, cykelhus samt både bil- och cykelpool. Dockan är en stadsdel som förenar vattnets lugn med ett levande stadsliv. Här finns restauranger och caféer längs kajen, promenadstråk vid vattnet och närhet till Malmös city.
Planlösningen rymmer tre sovrum som ger flexibilitet för familj, gästrum eller hemmakontor. Det större sovrummet fungerar utmärkt som master bedroom medan de två mindre kan anpassas efter behov. Två badrum gör vardagen smidig. Det större är utrustat med tvättmaskin och torktumlare, medan det mindre fungerar som en praktisk gäst-wc. Förvaringen är välplanerad med garderober och klädkammare som gör att allt får sin plats.
Fartyget är ett nyproduktionsprojekt med 89 bostäder där kvaliteten märks i varje detalj. Här får du Vedumkök, vitvaror från Electrolux och moderna materialval som håller över tid. Som boende har du dessutom tillgång till garage med laddplatser, cykelhus samt både bil- och cykelpool. Dockan är en stadsdel som förenar vattnets lugn med ett levande stadsliv. Här finns restauranger och caféer längs kajen, promenadstråk vid vattnet och närhet till Malmös city.



















