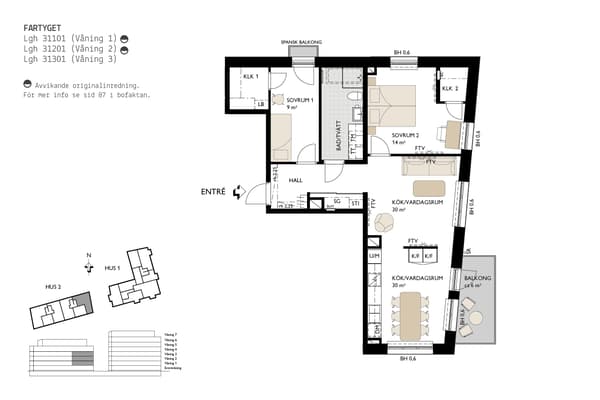
3 rok, 77 m²
På våning tre hittar du denna trea på 77 kvm med en planlösning som förenar funktion och trivsel. Köket och vardagsrummet är öppna mot varandra och bildar en generös sällskapsyta som blir hemmets hjärta. Här finns plats för både middagar, umgänge och lugna vardagskvällar. Från vardagsrummet kliver du ut på balkongen som förlänger hemmet och ger utrymme för både matbord och sittmöbler.
De två sovrummen gör bostaden flexibel och passar lika bra för paret som för den lilla familjen. Det större sovrummet har gott om plats för dubbelsäng och garderober, medan det mindre fungerar utmärkt som barnrum, gästrum eller arbetsrum. Badrummet är smakfullt inrett och utrustat med tvättmaskin, torktumlare. Förvaringslösningarna är välplanerade för att ge en praktisk vardag.
Fartyget består av 89 nyproducerade bostäder där kvaliteten märks i alla detaljer. Här får du Vedumkök, vitvaror från Electrolux och en modern standard som håller över tid. Föreningen erbjuder även garage med laddplatser, cykelhus samt både bil- och cykelpool. Dockan är en stadsdel som bjuder på liv och rörelse med restauranger, caféer och mötesplatser längs kajen, samtidigt som du har nära till Malmös city och centralstation.
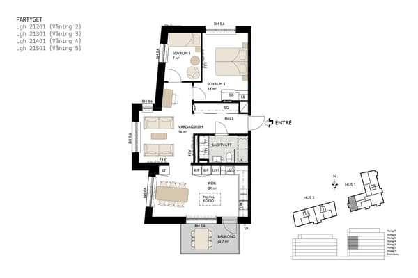
De två sovrummen gör bostaden flexibel och passar lika bra för paret som för den lilla familjen. Det större sovrummet har gott om plats för dubbelsäng och garderober, medan det mindre fungerar utmärkt som barnrum, gästrum eller arbetsrum. Badrummet är smakfullt inrett och utrustat med tvättmaskin, torktumlare. Förvaringslösningarna är välplanerade för att ge en praktisk vardag.
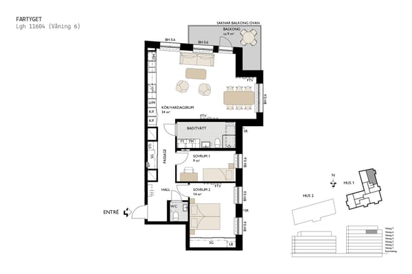
Fartyget består av 89 nyproducerade bostäder där kvaliteten märks i alla detaljer. Här får du Vedumkök, vitvaror från Electrolux och en modern standard som håller över tid. Föreningen erbjuder även garage med laddplatser, cykelhus samt både bil- och cykelpool. Dockan är en stadsdel som bjuder på liv och rörelse med restauranger, caféer och mötesplatser längs kajen, samtidigt som du har nära till Malmös city och centralstation.













