1 rok, 39 m²
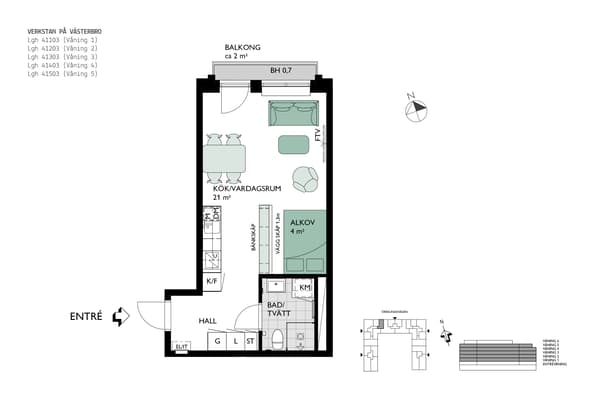
På våning tre hittar du denna etta på 39 kvm som är ovanligt rymlig för sin storlek. Den öppna planlösningen mellan kök och vardagsrum ger en flexibel yta med plats för både soffa, matbord och förvaring. Härifrån kliver du ut på balkongen som blir en naturlig förlängning av hemmet och en plats att njuta av både vardag och lediga stunder.
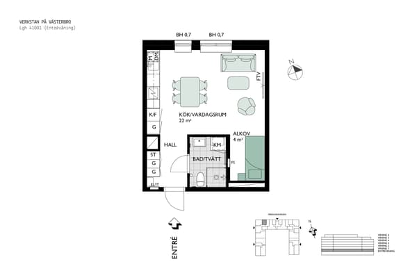
Sovalkoven är smart placerad och ger en tydlig avgränsning mellan sociala ytor och vila, vilket gör att bostaden känns som mer än bara en etta. Badrummet är modernt utformat med kakel, klinker samt utrustat med en kombimaskin för både tvätt och tork. Tack vare välplanerade garderober och genomtänkta detaljer är hemmet enkelt att hålla organiserat och funktionellt.
Fartyget erbjuder 89 nyproducerade bostäder med hög standard i varje del. Köken levereras av Vedum, vitvarorna av Electrolux och materialvalen är valda för att hålla över tid. Som boende får du tillgång till garage med laddplatser, cykelhus samt både bil- och cykelpool. Dockan är en stadsdel som kombinerar havsnära miljö med Malmös stadspuls. Här finns restauranger, service och promenadstråk alldeles utanför dörren.
Sovalkoven är smart placerad och ger en tydlig avgränsning mellan sociala ytor och vila, vilket gör att bostaden känns som mer än bara en etta. Badrummet är modernt utformat med kakel, klinker samt utrustat med en kombimaskin för både tvätt och tork. Tack vare välplanerade garderober och genomtänkta detaljer är hemmet enkelt att hålla organiserat och funktionellt.
Fartyget erbjuder 89 nyproducerade bostäder med hög standard i varje del. Köken levereras av Vedum, vitvarorna av Electrolux och materialvalen är valda för att hålla över tid. Som boende får du tillgång till garage med laddplatser, cykelhus samt både bil- och cykelpool. Dockan är en stadsdel som kombinerar havsnära miljö med Malmös stadspuls. Här finns restauranger, service och promenadstråk alldeles utanför dörren.
















