2 rok, 35 m²
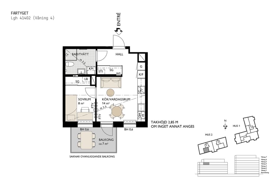
På våning fyra hittar du denna yteffektiva tvåa på 35 kvm som är perfekt för dig som vill bo kompakt men ändå bekvämt. Planlösningen är smart utformad med ett öppet kök och vardagsrum som gör bostaden ljus och lätt att möblera. Från vardagsrummet kliver du ut på balkongen som ger hemmet en extra dimension och en plats för avkoppling eller en kopp kaffe.
Sovrummet är avskilt och rymmer både säng och förvaring, vilket gör att hemmet fungerar lika bra för singeln som för paret. Badrummet är modernt inrett med kakel och klinker. Här finns också en kombimaskin för tvätt och tork som gör vardagen smidig. Med genomtänkta förvaringslösningar känns bostaden välorganiserad trots det kompakta formatet.
Fartyget består av 89 nyproducerade bostäder med genomgående hög standard. Alla hem har Vedumkök, vitvaror från Electrolux och materialval som håller över tid. Som boende får du dessutom tillgång till garage med laddplatser, cykelhus samt både bil- och cykelpool. Dockan är en stadsdel som ger dig en unik kombination av lugnet vid vattnet och stadens puls. Här bor du nära både restauranger, service och promenadstråk längs kajen.
Sovrummet är avskilt och rymmer både säng och förvaring, vilket gör att hemmet fungerar lika bra för singeln som för paret. Badrummet är modernt inrett med kakel och klinker. Här finns också en kombimaskin för tvätt och tork som gör vardagen smidig. Med genomtänkta förvaringslösningar känns bostaden välorganiserad trots det kompakta formatet.
Fartyget består av 89 nyproducerade bostäder med genomgående hög standard. Alla hem har Vedumkök, vitvaror från Electrolux och materialval som håller över tid. Som boende får du dessutom tillgång till garage med laddplatser, cykelhus samt både bil- och cykelpool. Dockan är en stadsdel som ger dig en unik kombination av lugnet vid vattnet och stadens puls. Här bor du nära både restauranger, service och promenadstråk längs kajen.















