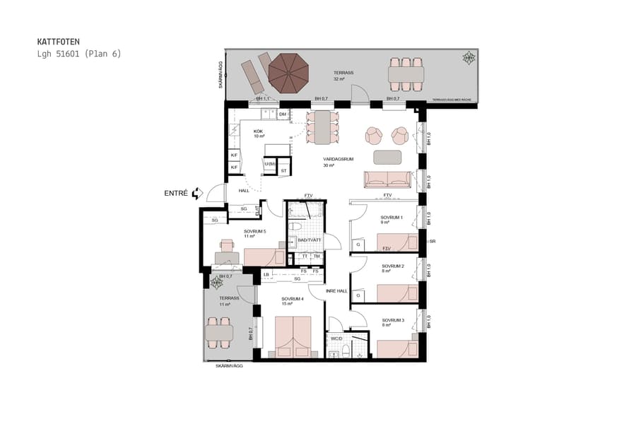
6 rok, 118 m²
Denna generösa sexrumslägenhet erbjuder en väl genomtänkt helhet där stora sällskapsytor kombineras med flera privata rum. Entrén leder in i en hall med goda avhängningsmöjligheter och förvaring, vilket skapar ett prydligt och funktionellt mottagande. En inre hall binder samman bostadens olika delar och ger en naturlig uppdelning mellan sociala och mer avskilda ytor.
Vardagsrummet är ljust och rymligt, med gott om plats för både soffgrupp och större umgänge. I direkt anslutning ligger köket, effektivt planerat med maskinell utrustning (kyl/frys, spis, ugn, diskho och diskmaskin) och har bra arbetsytor. Köket är modernt med vita skåpsluckor som harmoniserar med den gråa bänkskivan som spänner sig en bit upp på väggen och utgör en bakkantslist. Från sällskapsytorna nås bostadens större terrass om 32 kvm (nordväst, sol eftermiddag/kväll) som skapar en härlig förlängning av vardagsrummet och ger utrymme för både måltider och avkoppling utomhus. Därtill finns en ytterligare terrass om 11 kvm (sol förmiddag/eftermiddag), vilket ger extra flexibilitet och möjlighet till flera uteplatser.
Lägenheten rymmer fem sovrum i varierande storlek, vilket gör den väl lämpad för den större familjen eller för den som behöver flera rum för arbete, gäster eller hobby. Ett av sovrummen är generöst tilltaget och lämpar sig väl som föräldrasovrum, medan övriga rum fungerar utmärkt som barnrum, gästrum eller kontor.
Bostaden har ett rymligt badrum med tvätt- och torkmöjligheter samt en separat WC med dusch, vilket bidrar till en smidig vardag även för större hushåll. Badrummet är inrett i neutrala färger med vita kakelplattor och golv i grå klinker. Sammantaget är detta ett flexibelt och välplanerat hem med stora sällskapsytor, många rum och två terrasser som tillför boendet ett tydligt mervärde.
Lägenheten har genomgående formats utifrån en stilren känsla med naturliga material såsom ekparkett, fönsterbänkar i natursten och vitmålade väggar. Järvastaden är ett citynära modernt och familjevänligt område med påtaglig känsla av småstadsidyll. Fina parker, härliga natur- och fritidsområden. För all tänkbar shopping och nöjen så finns Mall of Scandinavia samt Strawberry arena i närheten. Runt knuten erbjuds bra närservice, butiker samt goda kommunikationer.
Vardagsrummet är ljust och rymligt, med gott om plats för både soffgrupp och större umgänge. I direkt anslutning ligger köket, effektivt planerat med maskinell utrustning (kyl/frys, spis, ugn, diskho och diskmaskin) och har bra arbetsytor. Köket är modernt med vita skåpsluckor som harmoniserar med den gråa bänkskivan som spänner sig en bit upp på väggen och utgör en bakkantslist. Från sällskapsytorna nås bostadens större terrass om 32 kvm (nordväst, sol eftermiddag/kväll) som skapar en härlig förlängning av vardagsrummet och ger utrymme för både måltider och avkoppling utomhus. Därtill finns en ytterligare terrass om 11 kvm (sol förmiddag/eftermiddag), vilket ger extra flexibilitet och möjlighet till flera uteplatser.
Lägenheten rymmer fem sovrum i varierande storlek, vilket gör den väl lämpad för den större familjen eller för den som behöver flera rum för arbete, gäster eller hobby. Ett av sovrummen är generöst tilltaget och lämpar sig väl som föräldrasovrum, medan övriga rum fungerar utmärkt som barnrum, gästrum eller kontor.
Bostaden har ett rymligt badrum med tvätt- och torkmöjligheter samt en separat WC med dusch, vilket bidrar till en smidig vardag även för större hushåll. Badrummet är inrett i neutrala färger med vita kakelplattor och golv i grå klinker. Sammantaget är detta ett flexibelt och välplanerat hem med stora sällskapsytor, många rum och två terrasser som tillför boendet ett tydligt mervärde.
Lägenheten har genomgående formats utifrån en stilren känsla med naturliga material såsom ekparkett, fönsterbänkar i natursten och vitmålade väggar. Järvastaden är ett citynära modernt och familjevänligt område med påtaglig känsla av småstadsidyll. Fina parker, härliga natur- och fritidsområden. För all tänkbar shopping och nöjen så finns Mall of Scandinavia samt Strawberry arena i närheten. Runt knuten erbjuds bra närservice, butiker samt goda kommunikationer.



















