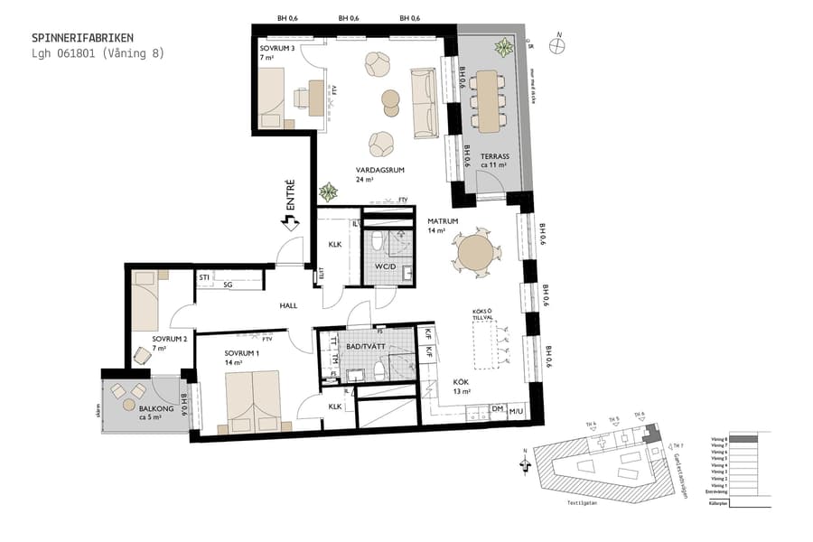
4 rok, 110 m²
Denna fyrarumslägenhet på våning 8 bjuder på något utöver det vanliga. Bostadens hjärta är det generösa köket och vardagsrummet i öppen planlösning, där stora fönsterpartier i två väderstreck släpper in ljuset och skapar rymd. Från vardagsrummet nås den rymliga terrassen i österläge, perfekt för frukost i morgonsolen, medan ett av sovrummen har utgång till en solig balkong i söder.
Planlösningen är flexibel med ett mindre rum i anslutning till vardagsrummet som med fördel kan användas som barnrum, kontor eller integreras för att skapa en ännu större sällskapsyta. Två ytterligare sovrum ligger mer avskilt – det större med direktaccess till en av lägenhetens två klädkammare, det andra med utgång till balkongen. Förvaring finns även i hallen i form av både skjutdörrsgarderob och klädkammare.
Köket är smakfullt utrustat med inbyggd mikro och ugn i högskåp, induktionshäll, och dubbla kyl/frysar. De sobra materialvalen skapar en modern och inbjudande känsla. I det större badrummet finns kakel, klinker, dusch med vikbara glasväggar samt tvättmaskin och torktumlare. Den separata gäst-wc:n har också dusch, vilket ger ökad funktion och komfort.
Brf Spinneriet erbjuder dessutom tillgång till en härlig grillplats på gården – perfekta plats för umgänge och avkoppling i det fria.Det finns även ett gårdshus med gästrum. I närområdet väntar restauranger, kreativa verksamheter och stadspuls, endast en spårvagnshållplats från Göteborgs central.
Planlösningen är flexibel med ett mindre rum i anslutning till vardagsrummet som med fördel kan användas som barnrum, kontor eller integreras för att skapa en ännu större sällskapsyta. Två ytterligare sovrum ligger mer avskilt – det större med direktaccess till en av lägenhetens två klädkammare, det andra med utgång till balkongen. Förvaring finns även i hallen i form av både skjutdörrsgarderob och klädkammare.
Köket är smakfullt utrustat med inbyggd mikro och ugn i högskåp, induktionshäll, och dubbla kyl/frysar. De sobra materialvalen skapar en modern och inbjudande känsla. I det större badrummet finns kakel, klinker, dusch med vikbara glasväggar samt tvättmaskin och torktumlare. Den separata gäst-wc:n har också dusch, vilket ger ökad funktion och komfort.
Brf Spinneriet erbjuder dessutom tillgång till en härlig grillplats på gården – perfekta plats för umgänge och avkoppling i det fria.Det finns även ett gårdshus med gästrum. I närområdet väntar restauranger, kreativa verksamheter och stadspuls, endast en spårvagnshållplats från Göteborgs central.













