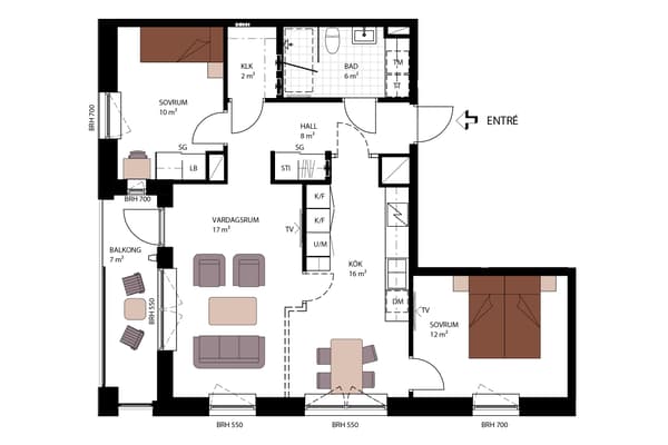
3 rok, 68 m²
Välplanerad trea med god förvaring och uteplats mot lugn innergård. Socialt och inbjudande vardagsrum med gott om plats till soffgrupp och matplats. Valet är ert om ni önskar öppen planlösning mot kök eller addera en tillvalsvägg och dörrpost för att separera matplats/köket från vardagsrummet. Modernt kök från Vedum, stilrena luckor och stänkskydd. Utrustningen består av integrerad diskmaskin, dubbla rostfria kyl/frys, spiskåpa, induktionshäll och rostfri varmluftsugn med teleskoputdrag. Generöst master bedroom med skjutdörrsgarderob och utgång till bostadens uteplats. Sovrum två erbjuder plats till säng, skrivbord och garderob. Badrummet är infällda LED-spottar i tak, stilrent inrett med vitt kakel på väggarna och ett grått klinker samt utrustat med dusch med glasdörr, kromad torkställning, kommod med spegel ovanför, tvättmaskin och torktumlare. Välkomnande hall med förvaring i skjutdörrsgarderob samt hatthylla. Hela lägenheten har vitmålade väggar och mattlackad 3-stav ekparkett. Till månadsavgiften tillkommer kostnad för Telia play (bredband, digital-TV). Individuell kostnad för varmvatten och hushållsel tillkommer. Till lägenheten hör ett externt förråd.


















