2 rok, 50 m²
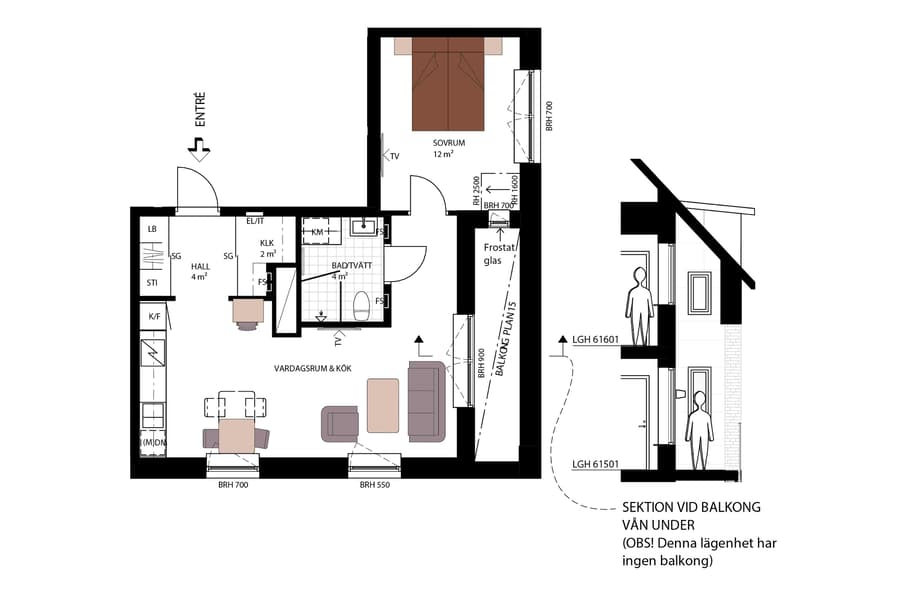
2 års Avgiftsfritt på denna bostad! Välplanerad tvåa i hörnläge med ljus från fönster i två väderstreck. Lägenheten har ett inbjudande och socialt vardagsrum med öppen planlösning mot köket. Vardagsrummet erbjuder gott om plats till sällskapsdel och matplats. Ljust och lättarbetat kök från Vedum med vitvaror från Electrolux. Stilrena ljusa luckor och stänkskydd. Utrustningen består av integrerad diskmaskin, rostfri kyl/frys, spiskåpa, induktionshäll, micro och rostfri varmluftsugn. Sovrummet med plats för säng och sängbord. Badrummet har infällda LED-spottar i tak, stilrent inrett med vitt kakel på väggarna och grått klinker samt utrustat med dusch med glasdörr, kromad torkställning, kommod med spegel ovanför, kombinerad tvättmaskin och torktumlare med skåpförvaring ovanför. I hallen finns förvaring i stor skjutdörrsgarderob och klädkammare. Hela lägenheten har vitmålade väggar och mattlackad 3-stav ekparkett. Till månadsavgiften tillkommer kostnad för Telia play (bredband, digital-tv). Individuell kostnad för varmvatten och hushållsel tillkommer. Till lägenheten hör ett externt förråd.











