3 rok, 97 m²
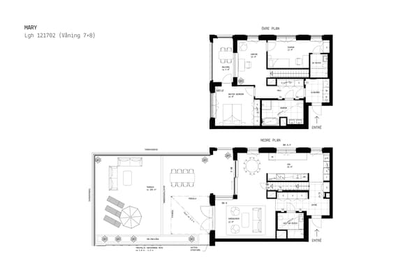
Här erbjuds en 3:a om hela 97 kvm. Planlösningen är flexibel och väl genomtänkt med vardagsrum och kök i öppen planlösning, väl tilltagna, separerade sovrum och dubbla badrum.
Hallen är inbjudande och rymlig och här ges gott om plats att gömma undan ytterkläder och skor i en stilren skjutdörrsgarderob.
Vidare in i bostaden är köket placerat i en öppen planlösning mot vardagsrummet. För den som önskar erbjuds möjligheten att separera rummen med en tillvalsvägg alternativt välja till en köksö. Köket levereras av Vedum och är smakfullt inrett med vita, släta luckor och en vacker kompositstenskiva som fortsätter upp på väggen i form av en bakkantslist. Under överskåpen finns en LED-list som ger dig optimalt arbetsljus. Rostfria handtag pryder lådor och högskåp medan väggskåpen är handtagslösa vilket skapar en fin sober känsla. Här finner du moderna vitvaror från Electrolux, inklusive två kyl/frys, induktionshäll, inbyggnadsugn, mikro och integrerad diskmaskin.
Från vardagsrummet nås balkongen som ligger i ett skyddat läge och är indragen i fasaden vilket gör den mer ombonad och trevlig att vistas på. Dessutom har den en inglasning som lätt går att skjuta undan vilket gör balkongen användbar en stor del av året. Här har du en sjöglimt samt vy mot innergården.
I bostaden finns två badrum utrustade med stilfullt grått klinkergolv och vita kakelplattor på väggarna. Duschutrymmet är elegant avskärmat med vikbara glasväggar. Det ena badrummet har även en bekväm arbetsbänk över tvättmaskin och torktumlare, samt förvaringsskåp med vita luckor. I taket sitter infällda spotlights med dimmer och ovanför handfatet finns en rund stilren spegel som ger ett modernt intryck.
Båda sovrummen är väl tilltagna och det ena har direktaccess till egen klädkammare och tillgång till det ena badrummet. En lyx utöver det vanliga!
Med modern och stilren färgsättning, fina och genomtänkta materialval presenteras JM Original. Här är väggarna målade i vitt och golvet är en trestavsparkett i ljuspigmenterad mattlackerad ek. Samtliga innerdörrar är släta och massiva. I kvarteret Mary erbjuds även möjligheten att välja mellan olika tillvalskombinationer för att skapa ett hem utefter dina egna önskemål.
Läget för denna bostad är idealiskt, med närhet till både stadsliv och natursköna områden för rekreation. Oavsett om du föredrar att cykla, åka kollektivt eller köra bil så finns det optimala kommunikationer för dig. För boende som är bilburna finns ett gemensamt garage, beläget under kvarter 2 och 3. Marieviks Udde omsluts även av en kajpromenad med bryggor och sittplatser, och i anslutning till kajpromenaden byggs en helt ny badanläggning med bassänger för såväl träningssimning som lek. Badanläggningen har planerad invigning 2025.
Hallen är inbjudande och rymlig och här ges gott om plats att gömma undan ytterkläder och skor i en stilren skjutdörrsgarderob.
Vidare in i bostaden är köket placerat i en öppen planlösning mot vardagsrummet. För den som önskar erbjuds möjligheten att separera rummen med en tillvalsvägg alternativt välja till en köksö. Köket levereras av Vedum och är smakfullt inrett med vita, släta luckor och en vacker kompositstenskiva som fortsätter upp på väggen i form av en bakkantslist. Under överskåpen finns en LED-list som ger dig optimalt arbetsljus. Rostfria handtag pryder lådor och högskåp medan väggskåpen är handtagslösa vilket skapar en fin sober känsla. Här finner du moderna vitvaror från Electrolux, inklusive två kyl/frys, induktionshäll, inbyggnadsugn, mikro och integrerad diskmaskin.
Från vardagsrummet nås balkongen som ligger i ett skyddat läge och är indragen i fasaden vilket gör den mer ombonad och trevlig att vistas på. Dessutom har den en inglasning som lätt går att skjuta undan vilket gör balkongen användbar en stor del av året. Här har du en sjöglimt samt vy mot innergården.
I bostaden finns två badrum utrustade med stilfullt grått klinkergolv och vita kakelplattor på väggarna. Duschutrymmet är elegant avskärmat med vikbara glasväggar. Det ena badrummet har även en bekväm arbetsbänk över tvättmaskin och torktumlare, samt förvaringsskåp med vita luckor. I taket sitter infällda spotlights med dimmer och ovanför handfatet finns en rund stilren spegel som ger ett modernt intryck.
Båda sovrummen är väl tilltagna och det ena har direktaccess till egen klädkammare och tillgång till det ena badrummet. En lyx utöver det vanliga!
Med modern och stilren färgsättning, fina och genomtänkta materialval presenteras JM Original. Här är väggarna målade i vitt och golvet är en trestavsparkett i ljuspigmenterad mattlackerad ek. Samtliga innerdörrar är släta och massiva. I kvarteret Mary erbjuds även möjligheten att välja mellan olika tillvalskombinationer för att skapa ett hem utefter dina egna önskemål.
Läget för denna bostad är idealiskt, med närhet till både stadsliv och natursköna områden för rekreation. Oavsett om du föredrar att cykla, åka kollektivt eller köra bil så finns det optimala kommunikationer för dig. För boende som är bilburna finns ett gemensamt garage, beläget under kvarter 2 och 3. Marieviks Udde omsluts även av en kajpromenad med bryggor och sittplatser, och i anslutning till kajpromenaden byggs en helt ny badanläggning med bassänger för såväl träningssimning som lek. Badanläggningen har planerad invigning 2025.
















