4 rok, 96 m²
Här presenteras en gavel 4:a på våning 23 med spektakulär sjöutsikt mot både Årstaviken och Södermalm. Denna bostad erbjuder allt du kan önska dig för ett bekvämt och lyxigt boende. Inte minst en extra takhöjd om 2,85m och sjöutsikt från samtliga fönster!
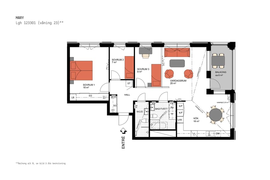
I den inbjudande hallen finns gott om förvaring bakom skjutdörrar. I anslutning till hallen ligger bostadens tre sovrum. Längre in finner du även bostadens två badrum, båda utrustade med stilfulla grå klinkergolv och vita kakelplattor på väggarna. Duschutrymmet är elegant avskärmat med glasväggar. Det ena badrummet är utrustat med en tvättmaskin och torktumlare under en praktisk arbetsbänk. För optimal förvaringsmöjlighet finns här även väggskåp med vita släta luckor. I taket sitter infällda spotlights med dimmer och ovanför handfatet finns en rund stilren spegel som ger ett modernt intryck.
I denna bostad erbjuds en flexibel planlösning där möjlighet till ett sovrum mindre till fördel för större vardagsrum och sällskapsytor ges. Vardagsrummet är lätt att möblera och perfekt för både avkoppling och sociala tillställningar. Härifrån nås den underbara balkongen som frontar mot vattnet. Den är inglasad samt indragen i fasaden vilket gör den ombonad och trevlig att vistas på. Dessutom har den en inglasning som lätt går att skjuta undan vilket gör balkongen användbar en stor del av året. Här har du en underbar och rogivande sjöutsikt i gavel och vy mot Södermalm.
I öppen planlösning finner du det moderna köket som levereras av Vedum och är smakfullt inrett med vita, släta luckor och en vacker kompositstenskiva som fortsätter upp på väggen i form av en bakkantslist. Under överskåpen finns en LED-list som ger dig optimalt arbetsljus. Rostfria handtag pryder lådor och högskåp medan väggskåpen är handtagslösa vilket skapar en fin sober känsla. Här finner du moderna vitvaror från Electrolux, inklusive två kyl/frys, induktionshäll, inbyggnadsugn, mikro och integrerad diskmaskin.
Med modern och stilren färgsättning, fina och genomtänkta materialval presenteras JM Original. Här är väggarna målade i vitt och golvet är en trestavsparkett i ljuspigmenterad mattlackerad ek. Samtliga innerdörrar är släta och massiva. I kvarteret Mary erbjuds även möjligheten att välja mellan olika tillvalskombinationer för att skapa ett hem utefter dina egna önskemål.
Läget för denna bostad är idealiskt, med närhet till både stadsliv och natursköna områden för rekreation. Oavsett om du föredrar att cykla, åka kollektivt eller köra bil så finns det optimala kommunikationer för dig. För boende som är bilburna finns ett gemensamt garage, beläget under kvarter 2 och 3. Marieviks Udde omsluts även av en kajpromenad med bryggor och sittplatser, och i anslutning till kajpromenaden har en helt ny badanläggning med bassänger för såväl träningssimning som lek byggts.
I den inbjudande hallen finns gott om förvaring bakom skjutdörrar. I anslutning till hallen ligger bostadens tre sovrum. Längre in finner du även bostadens två badrum, båda utrustade med stilfulla grå klinkergolv och vita kakelplattor på väggarna. Duschutrymmet är elegant avskärmat med glasväggar. Det ena badrummet är utrustat med en tvättmaskin och torktumlare under en praktisk arbetsbänk. För optimal förvaringsmöjlighet finns här även väggskåp med vita släta luckor. I taket sitter infällda spotlights med dimmer och ovanför handfatet finns en rund stilren spegel som ger ett modernt intryck.
I denna bostad erbjuds en flexibel planlösning där möjlighet till ett sovrum mindre till fördel för större vardagsrum och sällskapsytor ges. Vardagsrummet är lätt att möblera och perfekt för både avkoppling och sociala tillställningar. Härifrån nås den underbara balkongen som frontar mot vattnet. Den är inglasad samt indragen i fasaden vilket gör den ombonad och trevlig att vistas på. Dessutom har den en inglasning som lätt går att skjuta undan vilket gör balkongen användbar en stor del av året. Här har du en underbar och rogivande sjöutsikt i gavel och vy mot Södermalm.
I öppen planlösning finner du det moderna köket som levereras av Vedum och är smakfullt inrett med vita, släta luckor och en vacker kompositstenskiva som fortsätter upp på väggen i form av en bakkantslist. Under överskåpen finns en LED-list som ger dig optimalt arbetsljus. Rostfria handtag pryder lådor och högskåp medan väggskåpen är handtagslösa vilket skapar en fin sober känsla. Här finner du moderna vitvaror från Electrolux, inklusive två kyl/frys, induktionshäll, inbyggnadsugn, mikro och integrerad diskmaskin.
Med modern och stilren färgsättning, fina och genomtänkta materialval presenteras JM Original. Här är väggarna målade i vitt och golvet är en trestavsparkett i ljuspigmenterad mattlackerad ek. Samtliga innerdörrar är släta och massiva. I kvarteret Mary erbjuds även möjligheten att välja mellan olika tillvalskombinationer för att skapa ett hem utefter dina egna önskemål.
Läget för denna bostad är idealiskt, med närhet till både stadsliv och natursköna områden för rekreation. Oavsett om du föredrar att cykla, åka kollektivt eller köra bil så finns det optimala kommunikationer för dig. För boende som är bilburna finns ett gemensamt garage, beläget under kvarter 2 och 3. Marieviks Udde omsluts även av en kajpromenad med bryggor och sittplatser, och i anslutning till kajpromenaden har en helt ny badanläggning med bassänger för såväl träningssimning som lek byggts.










