2 rok, 41 m²
Välkommen till denna välplanerade och perfekta 2 rok om 41 kvm. Social öppen planlösning mellan kök och vardagsrum med utgång till balkong i västerläge in mot den trivsamma innergården. Hall med avhängningsmöjligheter och badrum i anslutning från hall med bekvämligheter såsom duschhörna av glas och kombimaskin med förvaringsskåp ovanför. Stort bra sovrum med praktisk skjutdörrsgarderob. Den här bostaden har genomtänkt inredning, fina materialval, smarta lösningar och självklart snygg design i utförandet JM Original. Givetvis går det att välja och kombinera materialval utifrån din stil – från det kostnadsfria sortimentet eller från ytterligare alternativ i olika prisklasser.
Färgsättningen är ljus och sober med en mattlackad ekparkett. Köket inreds med släta vita luckor och en grå bänkskiva som fortsätter en bit upp på väggen i form av en bakkantslist. Köksskåpen ovan bänk är handtagslösa vilket skapar en stilren och medveten känsla. Rostfria handtag på bänk- och högskåp. Under väggskåpen sitter en LED-list som ger ett bra och energisnålt arbetsljus. Rostfria vitvaror och integrerad diskmaskin för ett enhetligt intryck samt vitmålade väggar överallt.
Badrummet är helkaklat med ett vitt matt kakel. Tillsammans med ett grått klinkergolv skapas en säker och tidlös stil. En kommod under tvättstället gör det lätt att hålla ordning i badrummet. Ovanför kombinerad tvättmaskin och torktumlare sitter förvaring i väggskåp. Andra fina detaljer är duschväggar av glas och, den av JM designade torkställningen John.
Bostadsrättsföreningen har en gemensam trivsam innergård där du kan njuta av trevlig samvaro och många soltimmar. I föreningen finns en övernattningslägenhet som går att hyra för föreningens medlemmar samt ett bekvämt garage under huset. Här finns både vanliga platser och platser med laddbox att hyra till en månadskostnad. Miljörum för källsortering och cykel- och barnvagnsförråd samt rullstolsförvaring finns på entréplan. Det finns även ha en kommersiell lokal som ska hyras ut för exempelvis caféverksamhet.
Grundutbud med TV, IP-telefoni och bredband erbjuds via Telia Tripleplay och ingår i månadsavgiften.
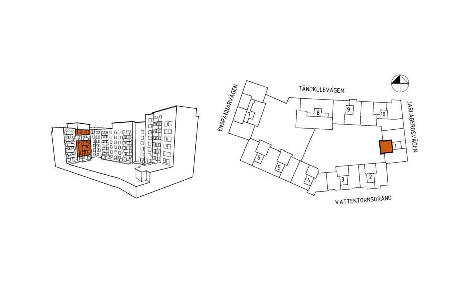
I Vattentornet Södra bor du i hjärtat av centrala Nacka. Gångavstånd till Nacka Forum med butiker, restauranger och närservice samt naturen med Nyckelviken och vattnet vid Nacka Strand. Kommunikationerna är goda med flera busslinjer, den populära pendelbåten till Nybroviken och blivande tunnelbana inom nära promenadavstånd.
Färgsättningen är ljus och sober med en mattlackad ekparkett. Köket inreds med släta vita luckor och en grå bänkskiva som fortsätter en bit upp på väggen i form av en bakkantslist. Köksskåpen ovan bänk är handtagslösa vilket skapar en stilren och medveten känsla. Rostfria handtag på bänk- och högskåp. Under väggskåpen sitter en LED-list som ger ett bra och energisnålt arbetsljus. Rostfria vitvaror och integrerad diskmaskin för ett enhetligt intryck samt vitmålade väggar överallt.
Badrummet är helkaklat med ett vitt matt kakel. Tillsammans med ett grått klinkergolv skapas en säker och tidlös stil. En kommod under tvättstället gör det lätt att hålla ordning i badrummet. Ovanför kombinerad tvättmaskin och torktumlare sitter förvaring i väggskåp. Andra fina detaljer är duschväggar av glas och, den av JM designade torkställningen John.
Bostadsrättsföreningen har en gemensam trivsam innergård där du kan njuta av trevlig samvaro och många soltimmar. I föreningen finns en övernattningslägenhet som går att hyra för föreningens medlemmar samt ett bekvämt garage under huset. Här finns både vanliga platser och platser med laddbox att hyra till en månadskostnad. Miljörum för källsortering och cykel- och barnvagnsförråd samt rullstolsförvaring finns på entréplan. Det finns även ha en kommersiell lokal som ska hyras ut för exempelvis caféverksamhet.
Grundutbud med TV, IP-telefoni och bredband erbjuds via Telia Tripleplay och ingår i månadsavgiften.
I Vattentornet Södra bor du i hjärtat av centrala Nacka. Gångavstånd till Nacka Forum med butiker, restauranger och närservice samt naturen med Nyckelviken och vattnet vid Nacka Strand. Kommunikationerna är goda med flera busslinjer, den populära pendelbåten till Nybroviken och blivande tunnelbana inom nära promenadavstånd.













