2 rok, 78 m²
Välkommen till en unik och mycket attraktiv etagelägenhet högst upp i huset med en fantastisk terrass om 27 kvadratmeter och stora fönsterpartier. Här flyttar du in med vattnet och kajpromenaden precis utanför dörren.
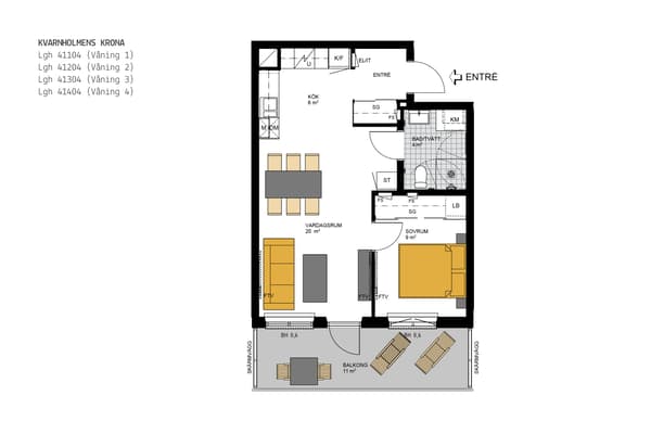
Hallen är rymlig och erbjuder goda förvaringsmöjligheter i skjutdörrsgarderober och klädkammare. Till höger om hallen ligger bostadens badrum. Badrummet är inrett i neutrala färger med vitt kakel på väggarna och grå klinker på golvet. Här finns tvättställ med kommod och spegel med belysning, duschdörrar, tvättmaskin och torktumlare med en praktisk arbetsbänk ovanpå samt överskåp med förvaring. Här finns även möjlighet att välja till badkar.
Köket är stilfullt inrett med vita skåpsluckor och passande bänkskiva i mellangrå kulör som snyggt löper vidare upp längs med väggen i en stänkskydd-sockel. Köket är utrustat med energieffektiva vitvaror i rostfritt, induktionshäll, inbyggd ugn och micro i högskåp samt helintegrerad diskmaskin.
Köket öppnar upp till det rymliga och ljuvliga vardagsrummet vilket har stora fönsterpartier i två väderstreck och dubbeldörrar ut till den enastående terrassen. I vardagsrummet ligger också trappan upp till det övre planet. Det övre planet har stora ytor och här finns plats för dubbelsäng, förvaring och skrivbord.
Bostaden har genomgående naturliga materialval såsom 3-stavsparkett i ek, fönsterbänkar i natursten och vita väggar vilket ger en klassisk och stilren känsla där du själv har möjlighet att sätta din personliga prägel.
Att bo på Kvarnholmen är att bo i en unik kulturhistorisk miljö mitt i Stockholm, på en halvö omgiven av havet. Här utvecklas nu en levande stadsdel där både historia och nyskapande samsas. Caféer, restauranger, matbutik och fina promenadstråk finns i den direkta närheten och kommunikationerna är goda med såväl buss till slussen som pendelbåt till Nybroplan.
Hallen är rymlig och erbjuder goda förvaringsmöjligheter i skjutdörrsgarderober och klädkammare. Till höger om hallen ligger bostadens badrum. Badrummet är inrett i neutrala färger med vitt kakel på väggarna och grå klinker på golvet. Här finns tvättställ med kommod och spegel med belysning, duschdörrar, tvättmaskin och torktumlare med en praktisk arbetsbänk ovanpå samt överskåp med förvaring. Här finns även möjlighet att välja till badkar.
Köket är stilfullt inrett med vita skåpsluckor och passande bänkskiva i mellangrå kulör som snyggt löper vidare upp längs med väggen i en stänkskydd-sockel. Köket är utrustat med energieffektiva vitvaror i rostfritt, induktionshäll, inbyggd ugn och micro i högskåp samt helintegrerad diskmaskin.
Köket öppnar upp till det rymliga och ljuvliga vardagsrummet vilket har stora fönsterpartier i två väderstreck och dubbeldörrar ut till den enastående terrassen. I vardagsrummet ligger också trappan upp till det övre planet. Det övre planet har stora ytor och här finns plats för dubbelsäng, förvaring och skrivbord.
Bostaden har genomgående naturliga materialval såsom 3-stavsparkett i ek, fönsterbänkar i natursten och vita väggar vilket ger en klassisk och stilren känsla där du själv har möjlighet att sätta din personliga prägel.
Att bo på Kvarnholmen är att bo i en unik kulturhistorisk miljö mitt i Stockholm, på en halvö omgiven av havet. Här utvecklas nu en levande stadsdel där både historia och nyskapande samsas. Caféer, restauranger, matbutik och fina promenadstråk finns i den direkta närheten och kommunikationerna är goda med såväl buss till slussen som pendelbåt till Nybroplan.














