3 rok, 78 m²
Välkommen till denna unika och välplanerade nyproducerade ägarlägenhet om 78 kvm – en stilren och genomgående 3:a med både balkong och uteplats. Generösa sociala ytor och en planlösning som verkligen andas ljus och rymd. Här bor du i ett lugnt och trivsamt kvarter i Sköndal, med närhet till både natur och service, i ett hem som erbjuder något utöver det vanliga.
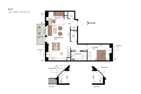
Bostaden har en genomgående planlösning med fönster i två väderstreck, vilket skapar ett härligt ljusflöde och en harmonisk känsla i hela hemmet. I det rymliga vardagsrummet på 18 kvm finns gott om plats för både soffgrupp och sociala sammankomster. Från vardagsrummet kliver du rakt ut på den härliga balkongen – perfekt för morgonkaffet, odling eller avkoppling i solen.
Det stilrena köket från Vedum ligger i en öppen planlösning mot vardagsrummet och erbjuder generösa arbetsytor, smart förvaring och plats för stort matbord. Moderna vitvaror från Electrolux och integrerad diskmaskin passar köket både den matlagningsintresserade och den som bara vill ha en snygg och funktionell vardagsmiljö.
Lägenheten erbjuder två väl tilltagna sovrum. Master bedroom på 15 kvm har direkt access till bostadens andra uteplats, som vetter mot innergården. Här kan du enkelt kan skapa en grön oas eller plats för middagar. Båda sovrummen är utrustade med garderober, och det större har dessutom en stor walk-in-closet/förråd i anslutning.
Badrummet är helkaklat med tvättmaskin, torktumlare med arbetsbänk ovanpå och väggskåp ovanför för maximal vardagskomfort. Som extra bonus finns även en separat gäst-WC – perfekt vid besök eller när familjen växer.
Bostaden är belägen i naturnära och lugna Sköndal med närhet till både Drevviken, promenadstråk, service och kommunikationer. Här bor du i en ägarlägenhet, vilket ger dig full äganderätt och frihet – ett unikt boendealternativ med stor flexibilitet.
Ägarlägenheter är en populär boendeform runt om i Europa och nu har du möjligheten att bli en del av denna trend även i Sverige. Med en ägarlägenhet kan du sälja, pantsätta eller hyra ut din bostad utan krångel. Möjligheterna är oändliga!
Bostaden har en genomgående planlösning med fönster i två väderstreck, vilket skapar ett härligt ljusflöde och en harmonisk känsla i hela hemmet. I det rymliga vardagsrummet på 18 kvm finns gott om plats för både soffgrupp och sociala sammankomster. Från vardagsrummet kliver du rakt ut på den härliga balkongen – perfekt för morgonkaffet, odling eller avkoppling i solen.
Det stilrena köket från Vedum ligger i en öppen planlösning mot vardagsrummet och erbjuder generösa arbetsytor, smart förvaring och plats för stort matbord. Moderna vitvaror från Electrolux och integrerad diskmaskin passar köket både den matlagningsintresserade och den som bara vill ha en snygg och funktionell vardagsmiljö.
Lägenheten erbjuder två väl tilltagna sovrum. Master bedroom på 15 kvm har direkt access till bostadens andra uteplats, som vetter mot innergården. Här kan du enkelt kan skapa en grön oas eller plats för middagar. Båda sovrummen är utrustade med garderober, och det större har dessutom en stor walk-in-closet/förråd i anslutning.
Badrummet är helkaklat med tvättmaskin, torktumlare med arbetsbänk ovanpå och väggskåp ovanför för maximal vardagskomfort. Som extra bonus finns även en separat gäst-WC – perfekt vid besök eller när familjen växer.
Bostaden är belägen i naturnära och lugna Sköndal med närhet till både Drevviken, promenadstråk, service och kommunikationer. Här bor du i en ägarlägenhet, vilket ger dig full äganderätt och frihet – ett unikt boendealternativ med stor flexibilitet.
Ägarlägenheter är en populär boendeform runt om i Europa och nu har du möjligheten att bli en del av denna trend även i Sverige. Med en ägarlägenhet kan du sälja, pantsätta eller hyra ut din bostad utan krångel. Möjligheterna är oändliga!














