3 rok, 72 m²
Välkommen till tre välplanerade rum och kök där varje kvadratmeter är noggrant genomtänkt för att skapa ett hem med både komfort, stil och funktion. Här bor du i en modern ägarlägenhet i lugna och gröna Sköndal med både balkong och uteplats.
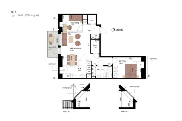
Bostadens hjärta är den öppna planlösningen mellan vardagsrum och kök, som bjuder in till gemenskap och gör hemmet ljust och luftigt. Det stilrena vita köket från Vedum är fullt utrustat med moderna vitvaror, gott om arbetsyta och förvaring – perfekt för dig som gillar att laga mat och umgås samtidigt. Från vardagsrummet nås en trevlig balkong som vetter i söderläge.
Det stora sovrummet har en lugn placering i bostadens bortre del mot innergården och erbjuder gott om plats för dubbelsäng samt praktisk förvaring. Härifrån når du direkt ut till en egen uteplats – en fantastisk förlängning av rummet där du kan börja dagen med morgonkaffe eller avsluta.
Det andra sovrummet fungerar utmärkt som barnrum, gästrum eller hemmakontor – ett flexibelt utrymme som enkelt anpassas efter livets olika skeden.
Det helkaklade badrummet är elegant och praktiskt utformat, utrustat med tvättmaskin och torktumlare samt gott om förvaring i väggskåp och kommod. Dessutom finns ett förråd i bostaden, som ger extra utrymme för det du vill ha nära men inte alltid framme.
Med modern arkitektur, smakfulla materialval och genomtänkt planlösning erbjuder den här bostaden ett boende med hög trivselfaktor. Här får du det bästa av två världar – ett nytt, lättskött hem i ett lugnt och naturnära område, samtidigt som du har stadens puls och service inom bekvämt avstånd.
Sköndal är en expanderande stadsdel som kombinerar det bästa av två världar – grönska och citynära läge. Inom gångavstånd hittar du Sköndals centrum och handelsplats, samtidigt som du har närhet till rekreation kring Drevviken, Flaten och Nackareservatet – perfekt för promenader, löpturer och bad.
Goda kommunikationer tar dig snabbt vidare – bussen når Gullmarsplan på cirka 12 minuter och Farsta på 8. Dessutom finns välutbyggda cykelvägar – till Södermalm cyklar du på omkring 20 minuter.
Att köpa en ägarlägenhet innebär att du äger din bostad fullt ut, likt ett småhus – vilket ger stor frihet. Det är också möjligt att köpa som juridisk person. Till skillnad från bostadsrätt betalar du hela bostadens värde direkt, vilket ger lägre fasta kostnader eftersom det inte finns några gemensamma föreningslån. Denna boendeform passar dig som vill ha kontroll, flexibilitet och långsiktig trygghet.
Ett hem att trivas i, växa i – och njuta av, året runt.
Bostadens hjärta är den öppna planlösningen mellan vardagsrum och kök, som bjuder in till gemenskap och gör hemmet ljust och luftigt. Det stilrena vita köket från Vedum är fullt utrustat med moderna vitvaror, gott om arbetsyta och förvaring – perfekt för dig som gillar att laga mat och umgås samtidigt. Från vardagsrummet nås en trevlig balkong som vetter i söderläge.
Det stora sovrummet har en lugn placering i bostadens bortre del mot innergården och erbjuder gott om plats för dubbelsäng samt praktisk förvaring. Härifrån når du direkt ut till en egen uteplats – en fantastisk förlängning av rummet där du kan börja dagen med morgonkaffe eller avsluta.
Det andra sovrummet fungerar utmärkt som barnrum, gästrum eller hemmakontor – ett flexibelt utrymme som enkelt anpassas efter livets olika skeden.
Det helkaklade badrummet är elegant och praktiskt utformat, utrustat med tvättmaskin och torktumlare samt gott om förvaring i väggskåp och kommod. Dessutom finns ett förråd i bostaden, som ger extra utrymme för det du vill ha nära men inte alltid framme.
Med modern arkitektur, smakfulla materialval och genomtänkt planlösning erbjuder den här bostaden ett boende med hög trivselfaktor. Här får du det bästa av två världar – ett nytt, lättskött hem i ett lugnt och naturnära område, samtidigt som du har stadens puls och service inom bekvämt avstånd.
Sköndal är en expanderande stadsdel som kombinerar det bästa av två världar – grönska och citynära läge. Inom gångavstånd hittar du Sköndals centrum och handelsplats, samtidigt som du har närhet till rekreation kring Drevviken, Flaten och Nackareservatet – perfekt för promenader, löpturer och bad.
Goda kommunikationer tar dig snabbt vidare – bussen når Gullmarsplan på cirka 12 minuter och Farsta på 8. Dessutom finns välutbyggda cykelvägar – till Södermalm cyklar du på omkring 20 minuter.
Att köpa en ägarlägenhet innebär att du äger din bostad fullt ut, likt ett småhus – vilket ger stor frihet. Det är också möjligt att köpa som juridisk person. Till skillnad från bostadsrätt betalar du hela bostadens värde direkt, vilket ger lägre fasta kostnader eftersom det inte finns några gemensamma föreningslån. Denna boendeform passar dig som vill ha kontroll, flexibilitet och långsiktig trygghet.
Ett hem att trivas i, växa i – och njuta av, året runt.



















