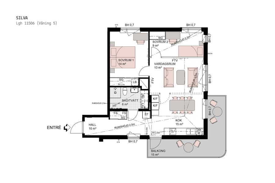
3 rok, 71 m²
Välkommen till denna ljusa och moderna lägenhet med öppen planlösning mellan kök och vardagsrum. Med fönster i tre väderstreck får du en härlig naturlig ljusinsläpp och en fantastisk utsikt över omgivande natur från den generösa omslutande balkongen i söder och väster.
Interiören präglas av vitmålade väggar och vacker ekparkett, vilket ger en tidlös och stilren känsla. Fönsterbänkar i natursten ger ytterligare en touch av elegans. Köket är modernt och stilfullt, med mörkgråa köksluckor (betonggrå), en mönstrad mörk bänkskiva (Kings Marble Green) och ett praktiskt stänkskydd i målat utförande i kombination med bankkantlista i samma färg som bänkskivan. Här finner du även rostfria kyl/frysar och en integrerad diskmaskin för bekvämlighet. Induktionshällen med underbyggnadsugn kommer att göra matlagningen till en fröjd.
I sovrummet finns gott om förvaringsutrymme i den rymliga skjutdörrsgarderoben. Det mindre sovrummet är ljust och luftigt med fönster i två väderstreck samt en praktisk skjutdörrsgarderob. Badrummet är stilrent inrett med ett grått klinkergolv och vit kakel på väggarna. Här finner du även tvättmaskin och torktumlare under bänkskivan samt förvaringsskåp ovanför.
Välkommen till detta perfekta hem för den som söker både modern design och närhet till naturen.
Här får du inte bara njuta av den vackra naturen, utan även ett fantastiskt utbud av service och bekvämligheter inom räckhåll. Huvudsta centrum med mataffärer, vårdcentraler och gym ligger bara en kort promenad bort. Med cykel tar du dig snabbt till Sundbyberg centrum för shopping och nöjen. Bromma Blocks erbjuder också ännu fler shoppingmöjligheter i närheten. För barnfamiljer finns det gott om förskolor i närområdet, och de närmaste grundskolorna är Lilla Alby skola (F-6) och Tallbackaskolan (F-9). Dessutom finns det flera gymnasieskolor att välja mellan.
Kommunikationerna är utmärkta med tunnelbanans blå linje som tar dig till både Solna strand och Huvudsta på några minuter. Busslinjer passerar också genom området och närmsta busshållplats finns på Huvudstaleden. För den som föredrar bilresor finns enkel tillgång till Huvudstaleden för resor både norrut och söderut. Dessutom finns cykelvänliga vägar längs vattnet som tar dig till Pampas Marina, Karlberg och Stockholm city. Bromma flygplats ligger även inom bekvämt avstånd.
Ägarlägenheter är en populär boendeform runt om i Europa och nu har du möjligheten att bli en del av denna trend även i Sverige. Med en ägarlägenhet kan du sälja, pantsätta eller hyra ut din bostad utan krångel. Möjligheterna är oändliga!
Välkommen till Kvarteret Silva, där förtrollande natur och enkelhet möts i harmoni.
Interiören präglas av vitmålade väggar och vacker ekparkett, vilket ger en tidlös och stilren känsla. Fönsterbänkar i natursten ger ytterligare en touch av elegans. Köket är modernt och stilfullt, med mörkgråa köksluckor (betonggrå), en mönstrad mörk bänkskiva (Kings Marble Green) och ett praktiskt stänkskydd i målat utförande i kombination med bankkantlista i samma färg som bänkskivan. Här finner du även rostfria kyl/frysar och en integrerad diskmaskin för bekvämlighet. Induktionshällen med underbyggnadsugn kommer att göra matlagningen till en fröjd.
I sovrummet finns gott om förvaringsutrymme i den rymliga skjutdörrsgarderoben. Det mindre sovrummet är ljust och luftigt med fönster i två väderstreck samt en praktisk skjutdörrsgarderob. Badrummet är stilrent inrett med ett grått klinkergolv och vit kakel på väggarna. Här finner du även tvättmaskin och torktumlare under bänkskivan samt förvaringsskåp ovanför.
Välkommen till detta perfekta hem för den som söker både modern design och närhet till naturen.
Här får du inte bara njuta av den vackra naturen, utan även ett fantastiskt utbud av service och bekvämligheter inom räckhåll. Huvudsta centrum med mataffärer, vårdcentraler och gym ligger bara en kort promenad bort. Med cykel tar du dig snabbt till Sundbyberg centrum för shopping och nöjen. Bromma Blocks erbjuder också ännu fler shoppingmöjligheter i närheten. För barnfamiljer finns det gott om förskolor i närområdet, och de närmaste grundskolorna är Lilla Alby skola (F-6) och Tallbackaskolan (F-9). Dessutom finns det flera gymnasieskolor att välja mellan.
Kommunikationerna är utmärkta med tunnelbanans blå linje som tar dig till både Solna strand och Huvudsta på några minuter. Busslinjer passerar också genom området och närmsta busshållplats finns på Huvudstaleden. För den som föredrar bilresor finns enkel tillgång till Huvudstaleden för resor både norrut och söderut. Dessutom finns cykelvänliga vägar längs vattnet som tar dig till Pampas Marina, Karlberg och Stockholm city. Bromma flygplats ligger även inom bekvämt avstånd.
Ägarlägenheter är en populär boendeform runt om i Europa och nu har du möjligheten att bli en del av denna trend även i Sverige. Med en ägarlägenhet kan du sälja, pantsätta eller hyra ut din bostad utan krångel. Möjligheterna är oändliga!
Välkommen till Kvarteret Silva, där förtrollande natur och enkelhet möts i harmoni.













