3 rok, 62 m²

Bokad
Våning
2 / 7
Balkong
6 m², Sydväst
Tillträde
preliminärt från mars 2028
Rum
3
Boarea
62

Planlösning

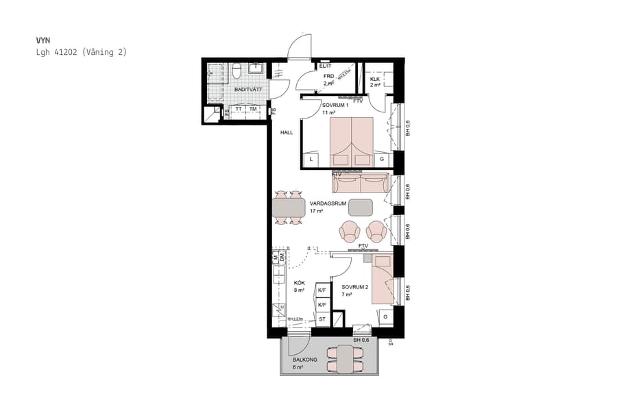
I planlösningen visas bostadsytans disposition. Se information så som mått, hur rummen är uppdelade och balkongens placering.

Floorplan

Balkongutsikt

Visionsbild som visar utsikten från balkongen eller uteplatsen.

Bostäderna är miljömärkta

Läs mer

Trygg bostadsrättsmarknad

Läs mer

Välj bostad

Se och jämför bostäderna i bostadsväljaren. Det du ser är visionsbilder och avvikelser kan förekomma.

Dölj alla bostäder
StatusRumPrisAvgiftBoareaVåningTillträdeNrAdress
Till salu12 790 000 kr3 010 kr31 m²6 / 8preliminärt från maj 202851602Blockstensgatan 14Läs mer om objekt 51602
Till salu12 840 000 kr3 010 kr31 m²7 / 8preliminärt från juni 202851702Blockstensgatan 14Läs mer om objekt 51702
Till salu12 940 000 kr3 010 kr31 m²8 / 8preliminärt från juni 202851802Blockstensgatan 14Läs mer om objekt 51802
Till salu22 490 000 kr3 490 kr40 m²1 / 7preliminärt från mars 202841104Blockstensgatan 12Läs mer om objekt 41104
Till salu22 590 000 kr3 490 kr40 m²2 / 7preliminärt från mars 202841204Blockstensgatan 12Läs mer om objekt 41204
Bokad362 m²2 / 7preliminärt från mars 202841202Blockstensgatan 12Läs mer om objekt 41202

Vyn

Bo i en grön del av Solna nära natur och vatten. Bostadsrätter om ett till fyra rum och kök vid härlig gård mot berg och kuperad skogsmark.

Läs mer om projektet

Tidslinje

Säljstart
2026-03-24
Nu släpps de bostäder som inte bokats av VIP-kunder till försäljning, och vi publicerar prislistan med planlösningar här på projektsidan.

/ 8
laddar

Fler bostäder i närheten

Se alla

Visionsbild
Till salu

4 rok, 101 m²

Solna kommun / Huvudsta Strandpark / Vyn

6 690 000 kr

Bostadsrätt • Våning 1/7

Visionsbild
Till salu

2 rok, 57 m²

Solna kommun / Huvudsta Strandpark / Vyn

3 490 000 kr

Bostadsrätt • Våning 1/7

Visionsbild
Till salu

2 rok, 44 m²

Solna kommun / Huvudsta Strandpark / Vyn

3 190 000 kr

Bostadsrätt • Våning 1/7