2 rok, 46 m²
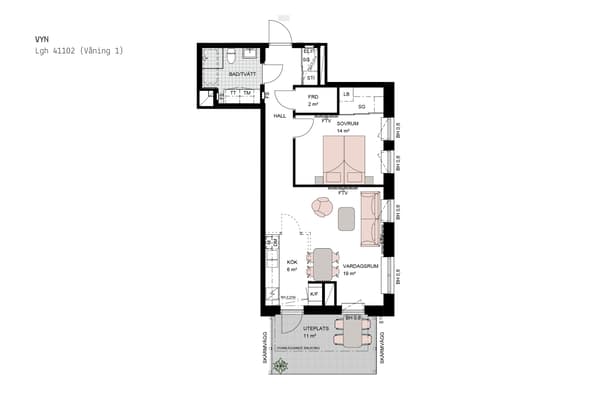
Här bor du i en modern och smakfullt utformad tvåa i Huvudsta Strandpark, där genomtänkta materialval och smart planering skapar ett hem att trivas i från första stund. Lägenheten präglas av ljusa ytskikt med vitmålade väggar, parkettgolv och fönsterbänkar i natursten, vilket ger en stilren och harmonisk helhet.
Det sociala vardagsrummet ligger i öppen anslutning till det välutrustade köket från Vedum, där arbetsytor och skåpsförvaring kombineras med pålitliga vitvaror från Electrolux. Här finns gott om plats för både matlagning och umgänge. Från vardagsrummet nås den generösa balkongen som vetter mot gården – en perfekt plats för avkoppling under sommarhalvåret.
Sovrummet erbjuder bra förvaring i en djup skjutdörrsgarderob, vilket gör det enkelt att hålla ordning i vardagen. Det helkaklade badrummet är elegant utformat med klinkergolv, dusch och en praktisk kombimaskin som ger extra bekvämlighet i vardagen. Som en uppskattad detalj finns även lägenhetsförråd i bostaden, vilket ger smart och lättillgänglig förvaring.
En nyproducerad bostad med genomgående hög standard, moderna bekvämligheter och ett attraktivt läge nära vatten, grönområden och goda kommunikationer. Ett hem att längta till.
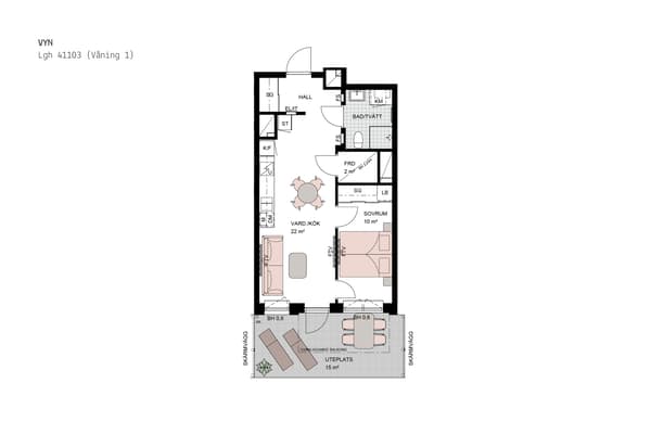
Det sociala vardagsrummet ligger i öppen anslutning till det välutrustade köket från Vedum, där arbetsytor och skåpsförvaring kombineras med pålitliga vitvaror från Electrolux. Här finns gott om plats för både matlagning och umgänge. Från vardagsrummet nås den generösa balkongen som vetter mot gården – en perfekt plats för avkoppling under sommarhalvåret.
Sovrummet erbjuder bra förvaring i en djup skjutdörrsgarderob, vilket gör det enkelt att hålla ordning i vardagen. Det helkaklade badrummet är elegant utformat med klinkergolv, dusch och en praktisk kombimaskin som ger extra bekvämlighet i vardagen. Som en uppskattad detalj finns även lägenhetsförråd i bostaden, vilket ger smart och lättillgänglig förvaring.
En nyproducerad bostad med genomgående hög standard, moderna bekvämligheter och ett attraktivt läge nära vatten, grönområden och goda kommunikationer. Ett hem att längta till.










