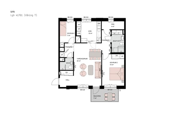
3 rok, 70 m²
Nyproducerad trerumslägenhet om 70 kvm i eftertraktade Huvudsta Strandpark med balkong mot gård och genomtänkta materialval.
Bostaden erbjuder en öppen och social planlösning där kök och vardagsrum skapar generösa ytor för umgänge. Köket från Vedum är modernt utformat med stilren inredning, bra arbetsytor och vitvaror från Electrolux.
Genomgående vitmålade väggar och ekparkettgolv ger ett ljust och enhetligt uttryck, medan fönsternischer i natursten adderar en exklusiv detalj som förstärker nyproduktionskänslan.
Lägenheten disponerar två sovrum med goda förvaringsmöjligheter. Från det ena sovrummet nås balkongen som vetter mot den lugna innergården. Vidare finns ett stilrent badrum samt ett praktiskt lägenhetsförråd i bostaden.
Ett modernt och bekvämt boende i ett naturnära område med närhet till vatten, kommunikationer och service – perfekt för dig som söker ett hem med både kvalitet och läge.
Bostaden erbjuder en öppen och social planlösning där kök och vardagsrum skapar generösa ytor för umgänge. Köket från Vedum är modernt utformat med stilren inredning, bra arbetsytor och vitvaror från Electrolux.
Genomgående vitmålade väggar och ekparkettgolv ger ett ljust och enhetligt uttryck, medan fönsternischer i natursten adderar en exklusiv detalj som förstärker nyproduktionskänslan.
Lägenheten disponerar två sovrum med goda förvaringsmöjligheter. Från det ena sovrummet nås balkongen som vetter mot den lugna innergården. Vidare finns ett stilrent badrum samt ett praktiskt lägenhetsförråd i bostaden.
Ett modernt och bekvämt boende i ett naturnära område med närhet till vatten, kommunikationer och service – perfekt för dig som söker ett hem med både kvalitet och läge.














