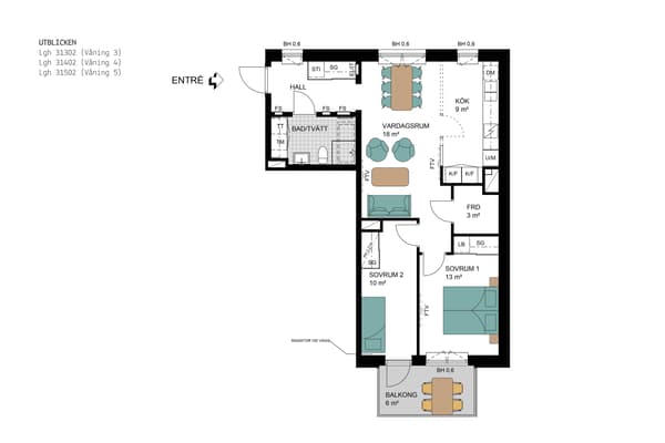
3 rok, 77 m²
Denna trea med en stor balkong som vetter mot naturen är ett perfekt boende för den som önskar lugn och ro. Med förrådet direkt i bostaden finns det gott om utrymme för förvaring. Här erbjuds en öppen och social planlösning mellan köket och vardagsrummet, vilket skapar en inbjudande atmosfär. Sovrummen har bra förvaringsmöjligheter och placeringen bidrar till en privat och en social del av bostaden.
Med vitmålade väggar och mattlackad ekparkett i svagt vitlaserad ton ger denna bostad en stilren och modern känsla. Köket har varmgråa köksluckor, bänkskiva i gråbeige toner och stänkskydd med bankkantslist i samma färg som bänkskivan och vitmålad vägg. Här finns även en induktionshäll, ugn under hällen samt integrerad diskmaskin och mikro i överskåp.
Badrummet är smakfullt inrett med vitt kakel och grått klinkergolv. Här finns även en tvättmaskin och torktumlare, kommod vid tvättstället och en duschvägg i klarglas.
Lägenheten är belägen i det natursköna området Huvudsta Strandpark, bara 250 meter från Bällstaviken. Kvarteret Utblicken, där denna bostad finns, är en del av JMs nya bostadsområde Huvudsta Strandpark. Kvarteret är utformat som ett långt lamellhus med sex trapphus och omges av en stor innergård. Fasaden kommer att ha ljusa och jordnära färger och området gränsar delvis mot berg och skogsmark.
Här bor du nära Hemköp i Huvudsta centrum, där du också hittar vårdcentral, frisörsalong och gym. Sundbyberg centrum ligger endast 10 minuters cykeltur bort och erbjuder flera populära restauranger, affärer och service. På andra sidan Bällstaviken finns shoppingcentret Bromma Blocks med ett ännu större utbud av shopping, restauranger och mataffärer.
I närområdet finns flera förskolor och närmaste grundskolor är Lilla Alby skola (F-6) samt Tallbackaskolan (F-9). Det finns också ett brett utbud av gymnasieskolor både i Solna och Stockholms kommun.
Kommunikationerna är utmärkta i Huvudsta Strandpark. Tunnelbanans blå linje ligger bara 8 minuters promenad bort vid Solna strand, medan Huvudsta tunnelbanestation nås på 10 minuter. Det finns även flera busslinjer i området och pendeltågsstationen i Sundbyberg samt tvärbanan ligger bara 15 minuter bort. För bilpendlaren är det lätt att ta sig upp på Huvudstaleden för resor norr- eller söderut. För den som föredrar cykel finns det cykelvänliga vägar längs vattnet som leder till Pampas Marina, Karlberg och Stockholm city. Dessutom är det nära till Bromma flygplats.
Detta är en fantastisk möjlighet att bo i en trevlig trea med närhet till både natur och stadsliv. Kontakta oss för mer information eller för att boka visning!
Med vitmålade väggar och mattlackad ekparkett i svagt vitlaserad ton ger denna bostad en stilren och modern känsla. Köket har varmgråa köksluckor, bänkskiva i gråbeige toner och stänkskydd med bankkantslist i samma färg som bänkskivan och vitmålad vägg. Här finns även en induktionshäll, ugn under hällen samt integrerad diskmaskin och mikro i överskåp.
Badrummet är smakfullt inrett med vitt kakel och grått klinkergolv. Här finns även en tvättmaskin och torktumlare, kommod vid tvättstället och en duschvägg i klarglas.
Lägenheten är belägen i det natursköna området Huvudsta Strandpark, bara 250 meter från Bällstaviken. Kvarteret Utblicken, där denna bostad finns, är en del av JMs nya bostadsområde Huvudsta Strandpark. Kvarteret är utformat som ett långt lamellhus med sex trapphus och omges av en stor innergård. Fasaden kommer att ha ljusa och jordnära färger och området gränsar delvis mot berg och skogsmark.
Här bor du nära Hemköp i Huvudsta centrum, där du också hittar vårdcentral, frisörsalong och gym. Sundbyberg centrum ligger endast 10 minuters cykeltur bort och erbjuder flera populära restauranger, affärer och service. På andra sidan Bällstaviken finns shoppingcentret Bromma Blocks med ett ännu större utbud av shopping, restauranger och mataffärer.
I närområdet finns flera förskolor och närmaste grundskolor är Lilla Alby skola (F-6) samt Tallbackaskolan (F-9). Det finns också ett brett utbud av gymnasieskolor både i Solna och Stockholms kommun.
Kommunikationerna är utmärkta i Huvudsta Strandpark. Tunnelbanans blå linje ligger bara 8 minuters promenad bort vid Solna strand, medan Huvudsta tunnelbanestation nås på 10 minuter. Det finns även flera busslinjer i området och pendeltågsstationen i Sundbyberg samt tvärbanan ligger bara 15 minuter bort. För bilpendlaren är det lätt att ta sig upp på Huvudstaleden för resor norr- eller söderut. För den som föredrar cykel finns det cykelvänliga vägar längs vattnet som leder till Pampas Marina, Karlberg och Stockholm city. Dessutom är det nära till Bromma flygplats.
Detta är en fantastisk möjlighet att bo i en trevlig trea med närhet till både natur och stadsliv. Kontakta oss för mer information eller för att boka visning!












