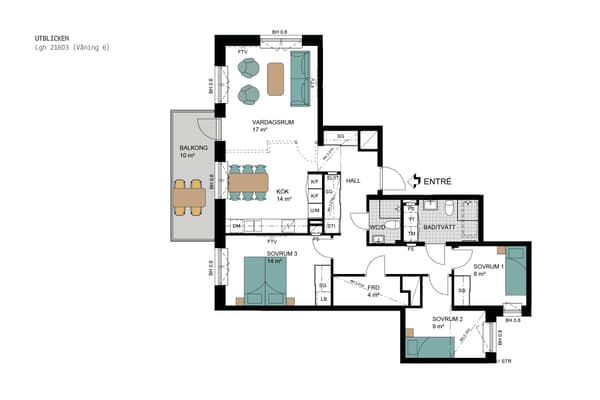
4 rok, 87 m²
Välkommen till denna charmiga gavelfyra med balkong mot gården i det nyproducerade kvarteret Utblicken i Huvudsta Strandpark. Med en öppen och social planlösning mellan kök och vardagsrum blir detta hem perfekt för umgänge och gemensamma stunder. Lägenhetsförrådet är beläget i bostaden och har till och med ett fönster, vilket ger extra ljus och praktisk förvaring. Dessutom finns en gäst-WC för bekvämlighet.
Interiört möts du av vitmålade väggar och en mattlackad ekparkett i svagt vitlaserad ton som ger en ljus och modern känsla. Köket är stilrent med betonggråa köksluckor, mörk bänkskiva samt stänkskydd av vitmålad vägg och mörk bakkantslist. Här finns även en induktionshäll, ugn och mikro i högskåp samt en integrerad diskmaskin. Badrummet är elegant med vitt kakel, grått klinkergolv, tvättmaskin, torktumlare, kommod vid tvättstället och en duschvägg i klarglas.
Kvarteret Utblicken är omringat av vacker natur, med närhet till Bällstavikens strand och omgivet av grönskande skogar. Här erbjuds ett barnvänligt läge med en stor gemensam innergård. Dessutom finns det gott om bekvämligheter i närområdet, såsom Hemköp, vårdcentral, frisörsalong och gym inom 10 minuters promenadavstånd. Sundbyberg centrum erbjuder även ett brett utbud av restauranger, service och affärer.
För familjer finns flera förskolor i området och närmaste grundskolor är Lilla Alby skola (F-6) samt Tallbackaskolan (F-9). Kommunikationerna är utmärkta med närhet till tunnelbanans blå linje och flertalet busslinjer. Pendeltågsstationen i Sundbyberg samt Bromma flygplats ligger inom bekvämt avstånd. Dessutom finns det cykelvänliga vägar längs vattnet som leder till Pampas Marina, Karlberg och Stockholm city.
Missa inte chansen att bo i denna trivsamma bostad med närhet till både natur och stadsliv. Välkommen hem!
Interiört möts du av vitmålade väggar och en mattlackad ekparkett i svagt vitlaserad ton som ger en ljus och modern känsla. Köket är stilrent med betonggråa köksluckor, mörk bänkskiva samt stänkskydd av vitmålad vägg och mörk bakkantslist. Här finns även en induktionshäll, ugn och mikro i högskåp samt en integrerad diskmaskin. Badrummet är elegant med vitt kakel, grått klinkergolv, tvättmaskin, torktumlare, kommod vid tvättstället och en duschvägg i klarglas.
Kvarteret Utblicken är omringat av vacker natur, med närhet till Bällstavikens strand och omgivet av grönskande skogar. Här erbjuds ett barnvänligt läge med en stor gemensam innergård. Dessutom finns det gott om bekvämligheter i närområdet, såsom Hemköp, vårdcentral, frisörsalong och gym inom 10 minuters promenadavstånd. Sundbyberg centrum erbjuder även ett brett utbud av restauranger, service och affärer.
För familjer finns flera förskolor i området och närmaste grundskolor är Lilla Alby skola (F-6) samt Tallbackaskolan (F-9). Kommunikationerna är utmärkta med närhet till tunnelbanans blå linje och flertalet busslinjer. Pendeltågsstationen i Sundbyberg samt Bromma flygplats ligger inom bekvämt avstånd. Dessutom finns det cykelvänliga vägar längs vattnet som leder till Pampas Marina, Karlberg och Stockholm city.
Missa inte chansen att bo i denna trivsamma bostad med närhet till både natur och stadsliv. Välkommen hem!













