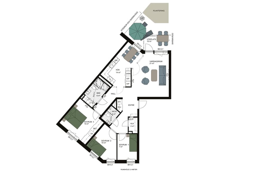
4 rok, 97 m²
Välplanerad fyra i markplan med uteplats mot grönskande gård i västerläge. Generösa och lättmöblerade sällskapsytor och bra sovrumsdel.
Man välkomnas in till en rymlig hall med god förvaring i skjutdörrsgarderob och intilliggande klädkammare. Härifrån når man även bostadens duschrum och vidare de två mindre sovrummen vilket gör detta till en liten egen del för barnen. När man fortsätter in i bostaden är det kök och vardagsrum som öppnar upp sig där man också når ut till uteplatsen. Vardagsrummet är rymligt och man möblerar med enkelhet för en stor soffgrupp. Köket gömmer sig bakom vägg vilket gör att man kan dölja lite av stöket samtidigt som man har en trevlig öppen planlösning mot matplatsen.
Vidare in i hallen har man badrummet med tvätt och torkmaskin samt bra förvaring och sedan når man det stora sovrummet med skjutdörrsgarderober längs en hel vägg.
Till lägenheten hör även ett externt förråd.
Bostäderna i Roden Norra inreds med ett tidlöst och neutralt formspråk där JM Original komponeras utifrån form, funktion och hållbarhet för att stå sig år efter år. Alla produkter har hög kvalitet och bildar tillsammans en genomtänkt helhet.
Det familjevänliga kvarteret Roden byggs i den södra delen av Täby Park med promenadstråket gröna slingan utanför samtidigt som husen omsluter en grön innergård med gott om plats för avkoppling samt umgänge. Under huset finns förråd och garage och som boende i våra kvarter i Täby Park ingår även ett femårigt medlemskap i en bilpool. På taket installeras solceller för en grönare och mer ekonomisk hållbar förening.
I Täby Park bor man med närhet till det mesta vilket lockar alla olika åldersgrupper och här är det stort fokus på grönska med många fina parkstråk. Kvarteret Roden byggs med ett lummigt läge intill en fin naturpark som bjuder in till rekreation och lek. Det är promenadavstånd till både skolor, restauranger och butiken. Dessutom bor du i ett perfekt pendlarläge nära både buss till Danderyds Sjukhus där T-banans röda linje passerar och Roslagsbanan som tar dig in till Stockholms Östra. För bilburna är man snabbt ute på E18.
Om utbudet i Täbys Park växande stadsdel inte räcker till så finns Täby Centrum inte långt bort med ett brett utbud av butiker, service och restauranger. Vill man aktivera sig finns Täby´s nya simhall, rackethall och tennishall i närheten samt flertal inne och utomhusgym. Det finns även gott om fina naturområden i Täby som tex Rönningesjön med bad och promenadstråk samt skridskoåkning vintertid, Rönninge by som är en levande lantbruks- och kulturby, Stolpaskogen som är Täbys största naturparksområde eller Värtans strandpromenad och området kring Viggbyholms gård.
Välkommen till Täby och den nya levande stadsdelen Täby Park!
Man välkomnas in till en rymlig hall med god förvaring i skjutdörrsgarderob och intilliggande klädkammare. Härifrån når man även bostadens duschrum och vidare de två mindre sovrummen vilket gör detta till en liten egen del för barnen. När man fortsätter in i bostaden är det kök och vardagsrum som öppnar upp sig där man också når ut till uteplatsen. Vardagsrummet är rymligt och man möblerar med enkelhet för en stor soffgrupp. Köket gömmer sig bakom vägg vilket gör att man kan dölja lite av stöket samtidigt som man har en trevlig öppen planlösning mot matplatsen.
Vidare in i hallen har man badrummet med tvätt och torkmaskin samt bra förvaring och sedan når man det stora sovrummet med skjutdörrsgarderober längs en hel vägg.
Till lägenheten hör även ett externt förråd.
Bostäderna i Roden Norra inreds med ett tidlöst och neutralt formspråk där JM Original komponeras utifrån form, funktion och hållbarhet för att stå sig år efter år. Alla produkter har hög kvalitet och bildar tillsammans en genomtänkt helhet.
Det familjevänliga kvarteret Roden byggs i den södra delen av Täby Park med promenadstråket gröna slingan utanför samtidigt som husen omsluter en grön innergård med gott om plats för avkoppling samt umgänge. Under huset finns förråd och garage och som boende i våra kvarter i Täby Park ingår även ett femårigt medlemskap i en bilpool. På taket installeras solceller för en grönare och mer ekonomisk hållbar förening.
I Täby Park bor man med närhet till det mesta vilket lockar alla olika åldersgrupper och här är det stort fokus på grönska med många fina parkstråk. Kvarteret Roden byggs med ett lummigt läge intill en fin naturpark som bjuder in till rekreation och lek. Det är promenadavstånd till både skolor, restauranger och butiken. Dessutom bor du i ett perfekt pendlarläge nära både buss till Danderyds Sjukhus där T-banans röda linje passerar och Roslagsbanan som tar dig in till Stockholms Östra. För bilburna är man snabbt ute på E18.
Om utbudet i Täbys Park växande stadsdel inte räcker till så finns Täby Centrum inte långt bort med ett brett utbud av butiker, service och restauranger. Vill man aktivera sig finns Täby´s nya simhall, rackethall och tennishall i närheten samt flertal inne och utomhusgym. Det finns även gott om fina naturområden i Täby som tex Rönningesjön med bad och promenadstråk samt skridskoåkning vintertid, Rönninge by som är en levande lantbruks- och kulturby, Stolpaskogen som är Täbys största naturparksområde eller Värtans strandpromenad och området kring Viggbyholms gård.
Välkommen till Täby och den nya levande stadsdelen Täby Park!













