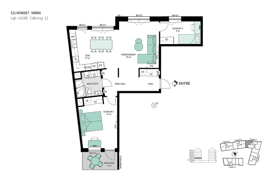
3 rok, 79 m²
Nu finns chansen att få kalla denna trea om 79 kvm för ditt hem. Förutom väl tilltagna ytor så erbjuder bostaden även en mysig balkong i lugnt läge mot föreningens lummiga innergård.
Bostadens hall är smart planerad men en skjutdörrsgarderob längs ena väggen som förvarar alla ytterkläder bakom stilrena dörrar vilket ger bostaden ett stilfullt utseende.
Tar vi ett par steg in i bostaden så finner vi kök och vardagsrum i öppen planlösning. Rummet är väl tilltaget om totalt 36 kvm som får gott om ljus via stora fönster längs ena väggen. Köket är placerat i vinkel längs ena väggen vilket innebär gott om arbetsyta och plats för köksmaskiner. Självklart kommer det utrustat med den maskinella utrustningen som du kan förvänta dig från en ny bostad med diskmaskin, induktionshäll, ugn samt kyl och frys. Köket erbjuder även plats för ett generöst matbord för den som uppskattar många vänner och familjemedlemmar på middagsbjudning. Vardagsrumsdelen rymmer enkelt en stor soffgrupp med olika möbleringsalternativ för Tvn.
Det mindre av de två sovrummen ligger i anslutning till vardagsrummet och kommer utrustat med en skjutdörrsgarderob. Vidare finns plats för både säng och skrivbord, perfekt som kombinerat gästrum/kontor alternativt som barnrum. Det större sovrummet finner vi på andra sidan av bostaden mot det lugna gårdsläget. Här finns plats för en dubbelsäng med tillhörande sängbord. Dessutom är det extra lyxigt att bostaden kommer med en stor skjutdörrsgarderob i sovrummet som tar hand om bostadens förvaring. På toppen av detta finns också plats att placera ett skrivbord framför fönstret.
I anslutning till sovrummet finns även bostadens balkong. Den är placerad i ett lugnt läge mot gården och blir ett perfekt ställe att avnjuta helgfrukosten eller varför inte vardagslunchen för den som har möjlighet att jobba hemifrån.
Det stilrena badrummet är inrett med moderna material och har separat tvättmaskin och torktumlare, vilket förenklar vardagen. Här kan du även göra tillval på ett badkar istället för dusch för en riktig spakänsla i hemmet.
JM erbjuder en hel katalog av olika tillvalsmöjligheter för bostäderna i Silveraxet Norra, det innebär att den som köper bostaden kommer att ges möjlighet att påverka en mängd olika materialval i bostaden, det gör att du får vara med och bestämma hur du vill att din nya bostad skall se ut.
Vidare erbjuder huset flera bekvämligheter så som en trevlig innergård med sittplatser och underjordiska garage som nås direkt från varje trapphus, självklart med laddstation för elbil. Lägenheten får dessutom ett förråd antingen i källaren eller på vinden och alldeles runt hörnet skall det inom kort anläggas en helt ny park.
Silveraxet Norra erbjuder inte bara ett hem, utan en hel livsstil. Med närhet till Göteborgs innerstad och det vackra promenadstråket längs älven är läget oslagbart. Här har du all service du behöver runt hörnet, med caféer, restauranger och handel i närheten. Goda kommunikationer gör det enkelt att ta sig runt, vare sig du pendlar till jobbet eller utforskar allt Göteborg har att erbjuda. Med närliggande buss- och färjeförbindelser är ditt nya hem både centralt och fridfullt.
Bostadens hall är smart planerad men en skjutdörrsgarderob längs ena väggen som förvarar alla ytterkläder bakom stilrena dörrar vilket ger bostaden ett stilfullt utseende.
Tar vi ett par steg in i bostaden så finner vi kök och vardagsrum i öppen planlösning. Rummet är väl tilltaget om totalt 36 kvm som får gott om ljus via stora fönster längs ena väggen. Köket är placerat i vinkel längs ena väggen vilket innebär gott om arbetsyta och plats för köksmaskiner. Självklart kommer det utrustat med den maskinella utrustningen som du kan förvänta dig från en ny bostad med diskmaskin, induktionshäll, ugn samt kyl och frys. Köket erbjuder även plats för ett generöst matbord för den som uppskattar många vänner och familjemedlemmar på middagsbjudning. Vardagsrumsdelen rymmer enkelt en stor soffgrupp med olika möbleringsalternativ för Tvn.
Det mindre av de två sovrummen ligger i anslutning till vardagsrummet och kommer utrustat med en skjutdörrsgarderob. Vidare finns plats för både säng och skrivbord, perfekt som kombinerat gästrum/kontor alternativt som barnrum. Det större sovrummet finner vi på andra sidan av bostaden mot det lugna gårdsläget. Här finns plats för en dubbelsäng med tillhörande sängbord. Dessutom är det extra lyxigt att bostaden kommer med en stor skjutdörrsgarderob i sovrummet som tar hand om bostadens förvaring. På toppen av detta finns också plats att placera ett skrivbord framför fönstret.
I anslutning till sovrummet finns även bostadens balkong. Den är placerad i ett lugnt läge mot gården och blir ett perfekt ställe att avnjuta helgfrukosten eller varför inte vardagslunchen för den som har möjlighet att jobba hemifrån.
Det stilrena badrummet är inrett med moderna material och har separat tvättmaskin och torktumlare, vilket förenklar vardagen. Här kan du även göra tillval på ett badkar istället för dusch för en riktig spakänsla i hemmet.
JM erbjuder en hel katalog av olika tillvalsmöjligheter för bostäderna i Silveraxet Norra, det innebär att den som köper bostaden kommer att ges möjlighet att påverka en mängd olika materialval i bostaden, det gör att du får vara med och bestämma hur du vill att din nya bostad skall se ut.
Vidare erbjuder huset flera bekvämligheter så som en trevlig innergård med sittplatser och underjordiska garage som nås direkt från varje trapphus, självklart med laddstation för elbil. Lägenheten får dessutom ett förråd antingen i källaren eller på vinden och alldeles runt hörnet skall det inom kort anläggas en helt ny park.
Silveraxet Norra erbjuder inte bara ett hem, utan en hel livsstil. Med närhet till Göteborgs innerstad och det vackra promenadstråket längs älven är läget oslagbart. Här har du all service du behöver runt hörnet, med caféer, restauranger och handel i närheten. Goda kommunikationer gör det enkelt att ta sig runt, vare sig du pendlar till jobbet eller utforskar allt Göteborg har att erbjuda. Med närliggande buss- och färjeförbindelser är ditt nya hem både centralt och fridfullt.











