2 rok, 54 m²
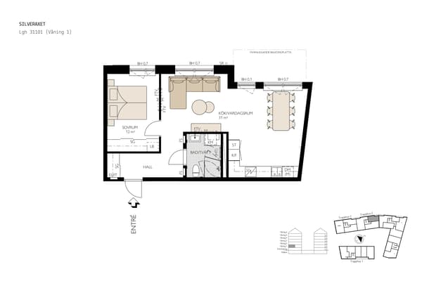
Här börjar drömmen om att skapa din fristad i JM:s nya kvarter Silveraxet. Den solida grunden utgörs av en genomtänkt tvåa om 54 kvm med moderna materialval och en balkong i västerläge mot den skyddande innergården.
När du kliver in genom dörren möts du av en rymlig hall med en stor skjutdörrsgarderob som löper längs ena väggen. Detta är en av två stora skjutdörrsgarderober i bostaden så förvaringsutrymme finns det gott om.
Du kliver vidare in till vardagsrummet som disponeras i en öppen planlösning med köket, en yteffektiv lösning som dessutom gör att du aldrig behöver lämna gästerna under middagsbjudningen utan kan hänga med i konversationen även när du står vid spisen. Köket ligger i en vinkel vilket ger riktigt goda arbetsytor och det kommer såklart utrustat med den maskinella utrustningen som man kan önska från en modern bostad så som diskmaskin, induktionshäll, ugn samt kombinerad kyl och frys.
Från bostadens vardagsrum och kök nås även västerbalkongen. Den ligger i ett skyddat läge mot föreningens innergård och ger dig möjligheten att skapa din egen gröna oas, perfekt för soliga dagar och ljumma kvällar.
Det ljusa sovrummet har gott om förvaring och utrymme för en dubbelsäng, vilket ger en harmonisk plats att dra sig tillbaka till efter en lång dag. Det stilrena badrummet är inrett med moderna material och har en kombinerad tvättmaskin och torktumlare, vilket förenklar vardagen. Här kan du även göra tillval på ett badkar istället för dusch för en riktig spakänsla i hemmet.
JM erbjuder en hel katalog av olika tillvalsmöjligheter för bostäderna i Silveraxet, det innebär att den som köper bostaden kommer att ges möjlighet att påverka en mängd olika materialval i bostaden, det gör att du får vara med och bestämma hur du vill att din nya bostad skall se ut.
Vidare erbjuder huset flera bekvämligheter så som en trevlig innergård med sittplatser och underjordiska garage som nås direkt från varje trapphus, självklart med laddstation för elbil. Lägenheten får dessutom ett förråd antingen i källaren eller på vinden och alldeles runt hörnet skall det inom kort anläggas en helt ny park.
Silveraxet erbjuder inte bara ett hem, utan en hel livsstil. Med närhet till Göteborgs innerstad och det vackra promenadstråket längs älven är läget oslagbart. Här har du all service du behöver runt hörnet, med caféer, restauranger och handel i närheten. Goda kommunikationer gör det enkelt att ta sig runt, vare sig du pendlar till jobbet eller utforskar allt Göteborg har att erbjuda. Med närliggande buss- och färjeförbindelser är ditt nya hem både centralt och fridfullt.
När du kliver in genom dörren möts du av en rymlig hall med en stor skjutdörrsgarderob som löper längs ena väggen. Detta är en av två stora skjutdörrsgarderober i bostaden så förvaringsutrymme finns det gott om.
Du kliver vidare in till vardagsrummet som disponeras i en öppen planlösning med köket, en yteffektiv lösning som dessutom gör att du aldrig behöver lämna gästerna under middagsbjudningen utan kan hänga med i konversationen även när du står vid spisen. Köket ligger i en vinkel vilket ger riktigt goda arbetsytor och det kommer såklart utrustat med den maskinella utrustningen som man kan önska från en modern bostad så som diskmaskin, induktionshäll, ugn samt kombinerad kyl och frys.
Från bostadens vardagsrum och kök nås även västerbalkongen. Den ligger i ett skyddat läge mot föreningens innergård och ger dig möjligheten att skapa din egen gröna oas, perfekt för soliga dagar och ljumma kvällar.
Det ljusa sovrummet har gott om förvaring och utrymme för en dubbelsäng, vilket ger en harmonisk plats att dra sig tillbaka till efter en lång dag. Det stilrena badrummet är inrett med moderna material och har en kombinerad tvättmaskin och torktumlare, vilket förenklar vardagen. Här kan du även göra tillval på ett badkar istället för dusch för en riktig spakänsla i hemmet.
JM erbjuder en hel katalog av olika tillvalsmöjligheter för bostäderna i Silveraxet, det innebär att den som köper bostaden kommer att ges möjlighet att påverka en mängd olika materialval i bostaden, det gör att du får vara med och bestämma hur du vill att din nya bostad skall se ut.
Vidare erbjuder huset flera bekvämligheter så som en trevlig innergård med sittplatser och underjordiska garage som nås direkt från varje trapphus, självklart med laddstation för elbil. Lägenheten får dessutom ett förråd antingen i källaren eller på vinden och alldeles runt hörnet skall det inom kort anläggas en helt ny park.
Silveraxet erbjuder inte bara ett hem, utan en hel livsstil. Med närhet till Göteborgs innerstad och det vackra promenadstråket längs älven är läget oslagbart. Här har du all service du behöver runt hörnet, med caféer, restauranger och handel i närheten. Goda kommunikationer gör det enkelt att ta sig runt, vare sig du pendlar till jobbet eller utforskar allt Göteborg har att erbjuda. Med närliggande buss- och färjeförbindelser är ditt nya hem både centralt och fridfullt.




