2 rok, 54 m²

Bokad
Våning
2 / 6
Balkong
6 m²
Tillträde
preliminärt från jan 2027
Rum
2
Boarea
54

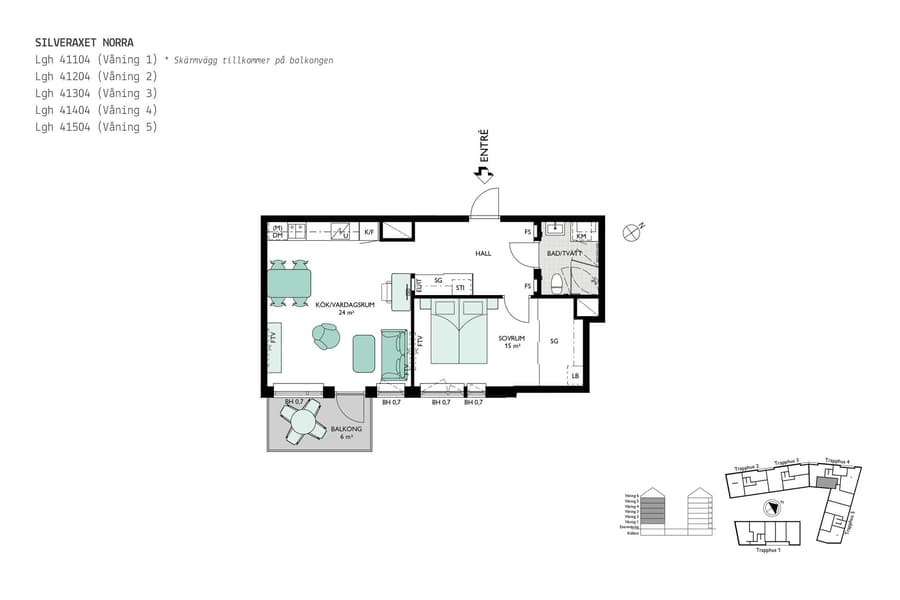
Planlösning

I planlösningen visas bostadsytans disposition. Se information så som mått, hur rummen är uppdelade och balkongens placering.

Floorplan

Säljstart av Etapp 5 i maj

6-20 maj säljstartar vi Etapp 5 av Silveraxet till våra VIP-kunder. Läs mer om fördelarna och bli VIP-kund för att få chans till förtur när bostäderna släpps till försäljning.

Läs mer om Etapp 5 här

Bostäderna är miljömärkta

Läs mer

Trygg bostadsrättsmarknad

Läs mer

Välj bostad

Se och jämför bostäderna i bostadsväljaren. Det du ser är visionsbilder och avvikelser kan förekomma.

Dölj alla bostäder
StatusRumPrisAvgiftDelägaBoareaVåningTillträdeNrAdress
Till salu11 995 000 kr3 360 krJa44 m²0 / 6preliminärt från nov 202621001BratteråsgatanLäs mer om objekt 21001
Till salu12 245 000 kr2 839 krNej33 m²5 / 6preliminärt från jan 202741501BratteråsgatanLäs mer om objekt 41501
Till salu22 595 000 kr3 802 krJa55 m²0 / 5preliminärt från dec 202631001BratteråsgatanLäs mer om objekt 31001
Till salu22 645 000 kr3 481 krNej47 m²1 / 6preliminärt från feb 202751102BratteråsgatanLäs mer om objekt 51102
Till salu22 945 000 kr3 763 krNej54 m²2 / 6preliminärt från okt 202611205BratteråsgatanLäs mer om objekt 11205
Bokad2Nej54 m²2 / 6preliminärt från jan 202741204BratteråsgatanLäs mer om objekt 41204

Fler etapper

Silveraxet är beläget i hjärtat av Göteborgs pulserande stadsdel Eriksberg på Hisingen (illustrationsbild).
VIP-försäljning

Silveraxet Etapp 5

Göteborg kommun / Eriksberg

2 845 000 kr - 3 295 000 kr

Bostadsrätt • 2 rok

Tidslinje

Bostäderna färdigställs
2026-05-16
Nu bygger vi färdigt de nya bostäderna! Du som köper en bostad kommer att bjudas in till visning av din bostad innan ditt tillträde.

/ 8
laddar

Fler bostäder i närheten

Se alla

Till salu

2 rok, 54 m²

Göteborg kommun / Eriksberg / Silveraxet

2 995 000 kr

Bostadsrätt • Våning 2/6

Till salu

2 rok, 54 m²

Göteborg kommun / Eriksberg / Silveraxet

2 995 000 kr

Bostadsrätt • Våning 2/6

Till salu

2 rok, 54 m²

Göteborg kommun / Eriksberg / Silveraxet

2 945 000 kr

Bostadsrätt • Våning 2/6