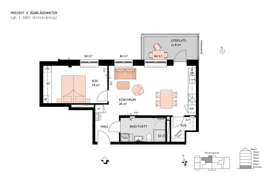
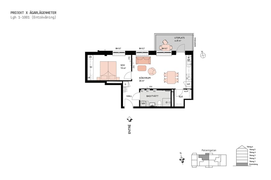
2 rok, 54 m²
En generös tvåa där kök och vardagsrum bildar en öppen och sammanhängande yta som ger en trivsam känsla av rymd. Planlösningen är lätt att möblera och erbjuder gott om plats för både matbord och soffgrupp. Från vardagsrummet når du en uteplats som förlänger bostaden utomhus och ger möjlighet till lugna stunder eller middagar.
Sovrummet är rymligt och har plats för dubbelsäng samt garderober längs vägg. Badrummet är helkaklat och utrustat med kombimaskin för tvätt och tork, vilket gör vardagen praktisk och bekväm.
Köket från Vedum har en modern och funktionell utformning med vitvaror från Electrolux, bland annat diskmaskin, ugn, induktionshäll, fläkt samt kyl och frys. De ljusa färgvalen och materialen skapar en tidlös och skandinavisk känsla som ger hemmet en varm och harmonisk karaktär.
Som ägare till en ägarlägenhet får du full frihet att forma ditt boende efter dina önskemål. Du äger bostaden med lagfart och kan hyra ut, renovera eller sälja när du vill, helt på dina egna villkor.
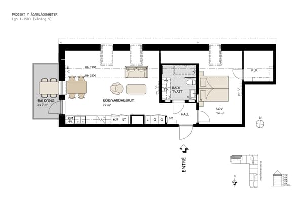
Sovrummet är rymligt och har plats för dubbelsäng samt garderober längs vägg. Badrummet är helkaklat och utrustat med kombimaskin för tvätt och tork, vilket gör vardagen praktisk och bekväm.
Köket från Vedum har en modern och funktionell utformning med vitvaror från Electrolux, bland annat diskmaskin, ugn, induktionshäll, fläkt samt kyl och frys. De ljusa färgvalen och materialen skapar en tidlös och skandinavisk känsla som ger hemmet en varm och harmonisk karaktär.
Som ägare till en ägarlägenhet får du full frihet att forma ditt boende efter dina önskemål. Du äger bostaden med lagfart och kan hyra ut, renovera eller sälja när du vill, helt på dina egna villkor.




