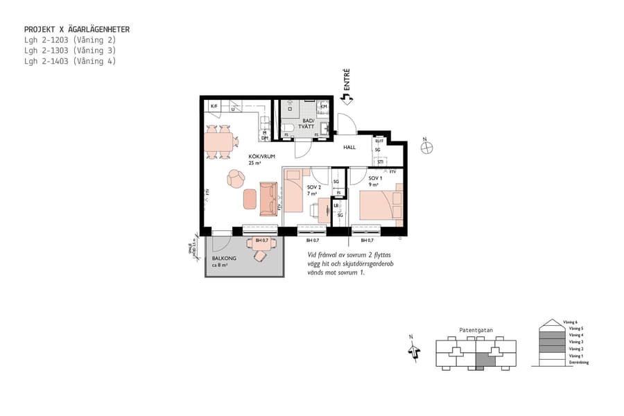
3 rok, 52 m²
En smart planerad trea där kök och vardagsrum möts i en öppen och social yta. Den öppna planlösningen gör bostaden lätt att möblera och skapar plats för både soffgrupp och matbord. Från vardagsrummet når du en parkvänd balkong i söderläge som ger sol under större delen av dagen och en naturlig plats för avkoppling.
Det här är en trea som också kan bli en tvåa! Om du väljer det senare alternativet utökas de sociala ytorna och samtidigt blir då också skjutdörrsgarderoben förlängd i det stora sovrummet. Badrummet är helkaklat och utrustat med kombimaskin för tvätt och tork vilket underlättar vardagen.
Köket från Vedum är stilrent och funktionellt med vitvaror från Electrolux som diskmaskin ugn induktionshäll fläkt samt kyl och frys. Ljusa färger och inslag av ek skapar en modern och tidlös känsla i skandinavisk stil.
Som ägare till en ägarlägenhet får du friheten att själv bestämma över ditt boende. Du äger bostaden med lagfart och kan hyra ut renovera eller sälja när du vill helt på dina egna villkor.
Det här är en trea som också kan bli en tvåa! Om du väljer det senare alternativet utökas de sociala ytorna och samtidigt blir då också skjutdörrsgarderoben förlängd i det stora sovrummet. Badrummet är helkaklat och utrustat med kombimaskin för tvätt och tork vilket underlättar vardagen.
Köket från Vedum är stilrent och funktionellt med vitvaror från Electrolux som diskmaskin ugn induktionshäll fläkt samt kyl och frys. Ljusa färger och inslag av ek skapar en modern och tidlös känsla i skandinavisk stil.
Som ägare till en ägarlägenhet får du friheten att själv bestämma över ditt boende. Du äger bostaden med lagfart och kan hyra ut renovera eller sälja när du vill helt på dina egna villkor.













