3 rok, 52 m²
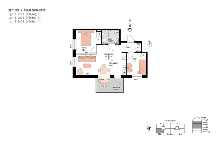
En genomtänkt trea där varje yta fyller sin funktion. Kök och vardagsrum binds samman i en öppen och social planlösning som gör hemmet lätt att leva i och trivsamt till vardags. Från vardagsrummet kliver du ut på en balkong i söderläge, där du får sol större delen av dagen.
Sovrummen ligger på varsin sida av bostaden, vilket skapar balans och avskildhet. Det mindre rummet kan användas som hemmakontor, barnrum eller gästrum. Badrummet är helkaklat och utrustat med kombimaskin för tvätt och tork, vilket ger smidig vardagsfunktion.
Köket från Vedum är både stilrent och praktiskt, utrustat med vitvaror från Electrolux – diskmaskin, ugn, induktionshäll, fläkt samt kyl och frys – allt integrerat i en genomtänkt helhet. De ljusa och naturliga materialen tillsammans med detaljer i ek ger hemmet en lugn och varm atmosfär i skandinavisk ton.
Som ägare till en ägarlägenhet har du friheten att själv bestämma över ditt boende. Du äger med lagfart och kan hyra ut, renovera eller sälja när du vill – helt på dina egna villkor.
Sovrummen ligger på varsin sida av bostaden, vilket skapar balans och avskildhet. Det mindre rummet kan användas som hemmakontor, barnrum eller gästrum. Badrummet är helkaklat och utrustat med kombimaskin för tvätt och tork, vilket ger smidig vardagsfunktion.
Köket från Vedum är både stilrent och praktiskt, utrustat med vitvaror från Electrolux – diskmaskin, ugn, induktionshäll, fläkt samt kyl och frys – allt integrerat i en genomtänkt helhet. De ljusa och naturliga materialen tillsammans med detaljer i ek ger hemmet en lugn och varm atmosfär i skandinavisk ton.
Som ägare till en ägarlägenhet har du friheten att själv bestämma över ditt boende. Du äger med lagfart och kan hyra ut, renovera eller sälja när du vill – helt på dina egna villkor.




