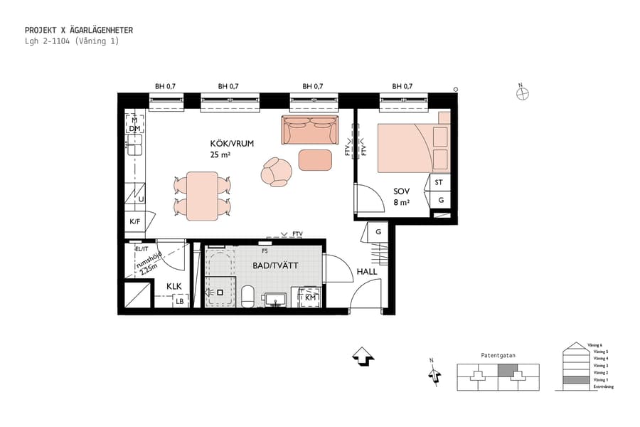
2 rok, 48 m²
En ljus och smart planerad tvåa på 48 kvm där kök och vardagsrum möts i en inbjudande, öppen planlösning. Den öppna ytan skapar ett socialt rum med plats för både soffgrupp och matbord och ett fint ljusflöde genom bostaden.
Sovrummet ligger avskilt och rymmer dubbelsäng samt klädkammare för praktisk förvaring. Badrummet är helkaklat och utrustat med kombimaskin för tvätt och tork, vilket gör vardagen enkel och bekväm.Köket kommer från Vedum och är utrustat med vitvaror från Electrolux – diskmaskin, ugn, induktionshäll, fläkt samt kyl och frys. Genomgående håller bostaden en ljus, tidlös stil i skandinavisk anda med naturliga materialval och inslag av ek som ger ett varmt intryck.
Som ägare till en ägarlägenhet har du full frihet – du äger din bostad med lagfart, precis som en villa. Det innebär att du själv bestämmer över ditt hem, med möjlighet att hyra ut, renovera eller sälja när du vill.
Sovrummet ligger avskilt och rymmer dubbelsäng samt klädkammare för praktisk förvaring. Badrummet är helkaklat och utrustat med kombimaskin för tvätt och tork, vilket gör vardagen enkel och bekväm.Köket kommer från Vedum och är utrustat med vitvaror från Electrolux – diskmaskin, ugn, induktionshäll, fläkt samt kyl och frys. Genomgående håller bostaden en ljus, tidlös stil i skandinavisk anda med naturliga materialval och inslag av ek som ger ett varmt intryck.
Som ägare till en ägarlägenhet har du full frihet – du äger din bostad med lagfart, precis som en villa. Det innebär att du själv bestämmer över ditt hem, med möjlighet att hyra ut, renovera eller sälja när du vill.
















