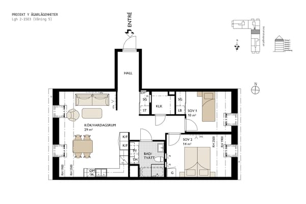
3 rok, 52 m²
En välplanerad trea där kök och vardagsrum samspelar i en öppen planlösning som ger en rymlig och social känsla. Den smarta utformningen gör det enkelt att möblera och skapa naturliga ytor för både umgänge och avkoppling.
De två sovrummen ligger på varsin sida av bostaden vilket ger en flexibel användning – det mindre rummet kan fungera som barnrum, gästrum eller arbetsrum. Badrummet är helkaklat och utrustat med kombimaskin för tvätt och tork, vilket gör vardagen både bekväm och praktisk.
Köket från Vedum är modernt och funktionellt med vitvaror från Electrolux såsom diskmaskin, ugn, induktionshäll, fläkt samt kyl och frys. De noggrant utvalda materialen och färgerna ger en tidlös helhet i skandinavisk stil med inslag av ek som skapar en varm och välkomnande atmosfär.
Som ägare till en ägarlägenhet får du full frihet att forma ditt boende. Du äger bostaden med lagfart och kan hyra ut, renovera eller sälja när du vill, helt på dina egna villkor.
De två sovrummen ligger på varsin sida av bostaden vilket ger en flexibel användning – det mindre rummet kan fungera som barnrum, gästrum eller arbetsrum. Badrummet är helkaklat och utrustat med kombimaskin för tvätt och tork, vilket gör vardagen både bekväm och praktisk.
Köket från Vedum är modernt och funktionellt med vitvaror från Electrolux såsom diskmaskin, ugn, induktionshäll, fläkt samt kyl och frys. De noggrant utvalda materialen och färgerna ger en tidlös helhet i skandinavisk stil med inslag av ek som skapar en varm och välkomnande atmosfär.
Som ägare till en ägarlägenhet får du full frihet att forma ditt boende. Du äger bostaden med lagfart och kan hyra ut, renovera eller sälja när du vill, helt på dina egna villkor.




