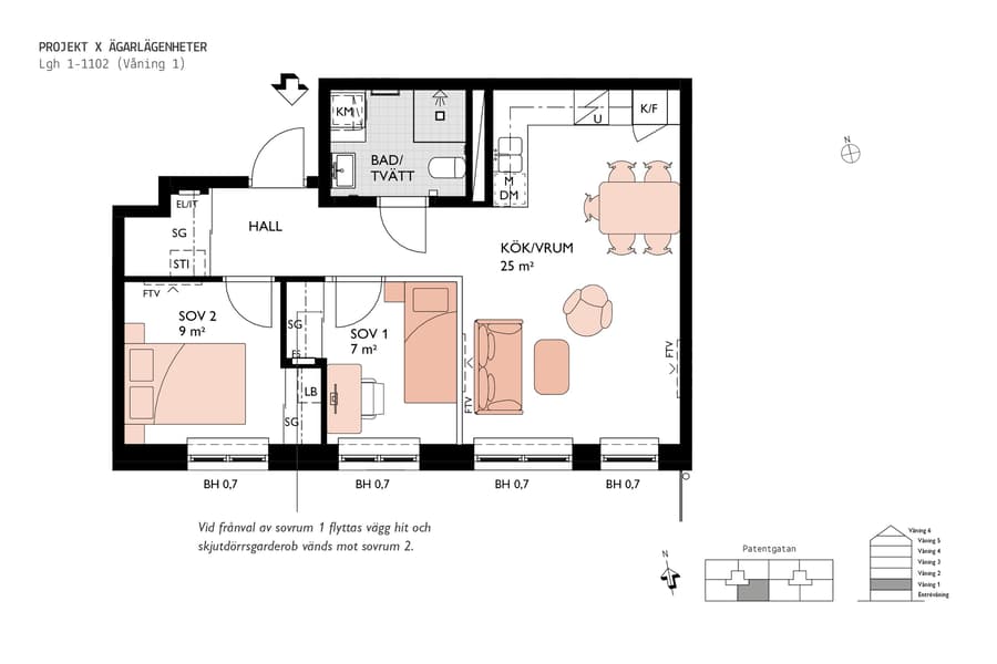
3 rok, 52 m²
En välplanerad trea där varje kvadratmeter används på bästa sätt. Kök och vardagsrum binds samman i en öppen planlösning som skapar en naturlig samlingspunkt med plats för både matbord och soffgrupp.
De två sovrummen ligger praktiskt placerade med ett i anslutning till vardagsrummet och det andra i den mer privata delen av bostaden. Det mindre rummet passar utmärkt som barnrum, kontor eller gästrum. Badrummet är helkaklat och utrustat med kombimaskin för tvätt och tork, vilket ger en bekväm och funktionell vardag.
Köket från Vedum är utformat för att ge både stil och effektivitet i vardagen, med vitvaror från Electrolux såsom diskmaskin, ugn, induktionshäll, fläkt samt kyl och frys.
Helheten präglas av JM:s tidlösa skandinaviska stil med ljusa kulörer och detaljer i ek som ger en varm och modern atmosfär. En bostad som är lätt att trivas i, oavsett livsskede.
Som ägare till en ägarlägenhet har du full frihet att själv bestämma över ditt hem. Du äger bostaden med lagfart och kan hyra ut, renovera eller sälja när du vill, helt på dina egna villkor.
De två sovrummen ligger praktiskt placerade med ett i anslutning till vardagsrummet och det andra i den mer privata delen av bostaden. Det mindre rummet passar utmärkt som barnrum, kontor eller gästrum. Badrummet är helkaklat och utrustat med kombimaskin för tvätt och tork, vilket ger en bekväm och funktionell vardag.
Köket från Vedum är utformat för att ge både stil och effektivitet i vardagen, med vitvaror från Electrolux såsom diskmaskin, ugn, induktionshäll, fläkt samt kyl och frys.
Helheten präglas av JM:s tidlösa skandinaviska stil med ljusa kulörer och detaljer i ek som ger en varm och modern atmosfär. En bostad som är lätt att trivas i, oavsett livsskede.
Som ägare till en ägarlägenhet har du full frihet att själv bestämma över ditt hem. Du äger bostaden med lagfart och kan hyra ut, renovera eller sälja när du vill, helt på dina egna villkor.












