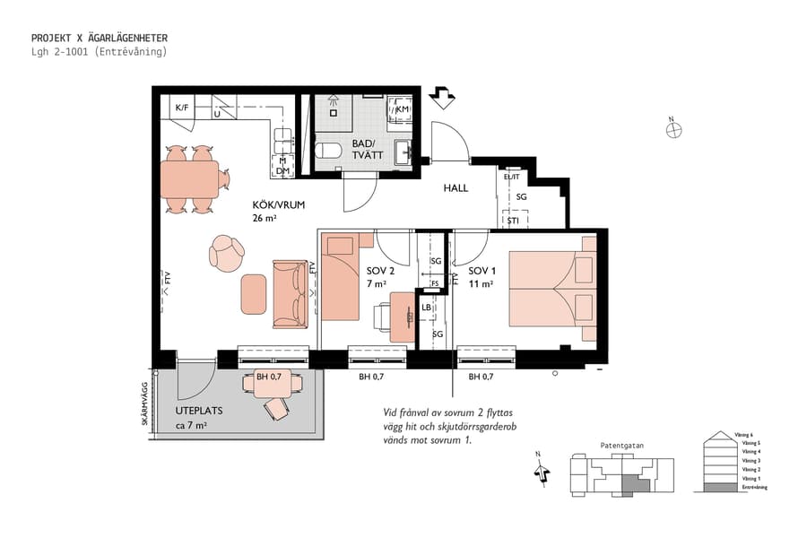
3 rok, 54 m²
En genomtänkt trea där kök och vardagsrum förenas i en öppen planlösning som skapar ett rymligt och socialt intryck. Här finns plats för både matbord och soffgrupp och från vardagsrummet kliver du ut på en uteplats i söderläge som ger sol större delen av dagen och blir en naturlig plats för avkoppling och umgänge.
Sovrummen ligger intill varandra vilket skapar en praktisk och sammanhållen sovdel. Det mindre rummet kan användas som arbetsrum gästrum eller barnrum beroende på behov. Badrummet är helkaklat och utrustat med kombimaskin för tvätt och tork vilket underlättar vardagen.
Köket från Vedum är utformat med fokus på både stil och funktion och har vitvaror från Electrolux som diskmaskin ugn induktionshäll fläkt samt kyl och frys. Ljusa färger och inslag av ek ger hemmet en tidlös och harmonisk atmosfär i skandinavisk stil.
Som ägare till en ägarlägenhet får du friheten att själv bestämma över ditt hem. Du äger bostaden med lagfart och kan hyra ut renovera eller sälja när du vill helt på dina egna villkor.
Sovrummen ligger intill varandra vilket skapar en praktisk och sammanhållen sovdel. Det mindre rummet kan användas som arbetsrum gästrum eller barnrum beroende på behov. Badrummet är helkaklat och utrustat med kombimaskin för tvätt och tork vilket underlättar vardagen.
Köket från Vedum är utformat med fokus på både stil och funktion och har vitvaror från Electrolux som diskmaskin ugn induktionshäll fläkt samt kyl och frys. Ljusa färger och inslag av ek ger hemmet en tidlös och harmonisk atmosfär i skandinavisk stil.
Som ägare till en ägarlägenhet får du friheten att själv bestämma över ditt hem. Du äger bostaden med lagfart och kan hyra ut renovera eller sälja när du vill helt på dina egna villkor.












