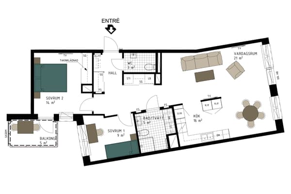
3 rok, 72 m²
Välkommen till en genomtänkt trerumslägenhet om 72 kvadrat som är perfekt planerad för både funktion och komfort. Bostaden inleds med en välkomnande hall med goda förvaringsmöjligheter bakom skjutdörrsgarderober och direkt access till lägenhetens fullt utrustade badrum. Bostaden har två välproportionerade sovrum, ett på åtta kvadrat och ett större på tolv kvadrat med klädkammare. Det generösa vardagsrummet skapar en inbjudande atmosfär och ger plats för både umgänge och avkoppling vilket i sin tur via en öppen planlösning möter köket som är både praktiskt och socialt.
Lägenheten har en ljus och sober färgsättning med mattlackad ekparkett. Köket har i originalutförandet släta vita luckor och en grå bänkskiva som fortsätter upp på väggen som en bakkantslist. För en stilren känsla är köksskåpen ovan bänk handtagslösa och lådor med rostfria handtag samt en LED-list under väggskåpen som ger ett energieffektivt arbetsljus. De rostfria vitvarorna och den integrerade diskmaskinen skapar ett enhetligt intryck tillsammans medan de vitmålade väggarna.
Badrummet är rymligt och utrustat med tvättmaskin och torktumlare samt en arbetsbänk och förvaringsskåp. Här har varje detalj valts med omsorg och inredningen präglas likt köket av moderna materialval, smarta lösningar och stilren design i JM Originals utförande. Här finns det även möjlighet att välja och kombinera materialval efter din egen smak.
Bostadsrättsföreningen erbjuder en trivsam innergård för samvaro och många soltimmar. För medlemmarna ett bekvämt garage under huset med både vanliga parkeringsplatser och platser med laddboxar till hyra. Miljörum för källsortering samt cykel- och barnvagnsförråd och rullstolsförvaring finns också på entréplan. En kommersiell lokal som kan hyras ut för exempelvis caféverksamhet finns också inom föreningens område.
TV, IP-telefoni och bredband via Telia Tripleplay ingår i månadsavgiften.
Med ett läge i hjärtat av centrala Nacka har du gångavstånd till Nacka Forum med butiker, restauranger och närservice, samt till naturen med Nyckelviken och vattnet vid Nacka Strand. Kommunikationerna är utmärkta med flera busslinjer, den populära pendelbåten till Nybroviken och den blivande tunnelbanan inom kort gångavstånd.
Lägenheten har en ljus och sober färgsättning med mattlackad ekparkett. Köket har i originalutförandet släta vita luckor och en grå bänkskiva som fortsätter upp på väggen som en bakkantslist. För en stilren känsla är köksskåpen ovan bänk handtagslösa och lådor med rostfria handtag samt en LED-list under väggskåpen som ger ett energieffektivt arbetsljus. De rostfria vitvarorna och den integrerade diskmaskinen skapar ett enhetligt intryck tillsammans medan de vitmålade väggarna.
Badrummet är rymligt och utrustat med tvättmaskin och torktumlare samt en arbetsbänk och förvaringsskåp. Här har varje detalj valts med omsorg och inredningen präglas likt köket av moderna materialval, smarta lösningar och stilren design i JM Originals utförande. Här finns det även möjlighet att välja och kombinera materialval efter din egen smak.
Bostadsrättsföreningen erbjuder en trivsam innergård för samvaro och många soltimmar. För medlemmarna ett bekvämt garage under huset med både vanliga parkeringsplatser och platser med laddboxar till hyra. Miljörum för källsortering samt cykel- och barnvagnsförråd och rullstolsförvaring finns också på entréplan. En kommersiell lokal som kan hyras ut för exempelvis caféverksamhet finns också inom föreningens område.
TV, IP-telefoni och bredband via Telia Tripleplay ingår i månadsavgiften.
Med ett läge i hjärtat av centrala Nacka har du gångavstånd till Nacka Forum med butiker, restauranger och närservice, samt till naturen med Nyckelviken och vattnet vid Nacka Strand. Kommunikationerna är utmärkta med flera busslinjer, den populära pendelbåten till Nybroviken och den blivande tunnelbanan inom kort gångavstånd.













