3 rok, 55 m²
Välkommen till en välplanerad och smakfullt designad trerummare intill vattnet på Kvarnholmen – en plats där stadens utbud möter skärgårdens lugn. Här bor du precis intill vattnet, med grönskande gårdar och glittrande sjöutsikt som vardagliga inslag. Lägenheten är skräddarsydd för dig som värdesätter både funktion och estetik – perfekt för mysiga hemmakvällar, middagar med vänner och lugna stunder med en bok på uteplatsen.
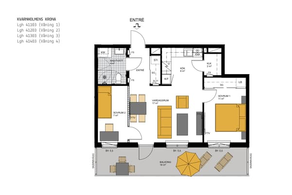
Det stilrena köket i L-form kombinerar praktiska arbetsytor med smart förvaring bakom släta vita luckor. Den grå bänkskivan bryter av elegant och skapar en modern känsla. Här finns allt du behöver: kyl/frys, integrerad diskmaskin, induktionshäll ugn samt inbyggd mikro. Samtliga vitvaror är noggrant utvalda vad gäller både prestanda och energisnål drift.
Den öppna planlösningen mellan kök och vardagsrum bjuder in till sociala sammanhang och rymmer både matbord och soffgrupp. Om så önskas kan en vägg väljas bort och skapa ett större vardagsrum. Härifrån kliver du rakt ut till en generös uteplats om ca 21 kvadratmeter med ett lugnt södervänt läge – en perfekt plats för odlingar, morgonkaffet eller sena sommarkvällar med vacker utsikt över vattnet.
Bostaden har ett badrum i harmoniska färger, med vitt kakel och grå klinkers, utrustat med kombimaskin, dusch och förvaring.
Lägenheten har två sovrum, varav det ena även passar fint som arbetsrum. Det större rummet erbjuder gott om förvaring med stor skjutdörrsgarderob.
Materialvalen i hemmet är genomgående noggrant utvalda för att skapa en tidlös och harmonisk känsla, med vitmålade väggar, fönsterbänkar i grå natursten och ekparkett i hela bostaden. För dig som vill sätta din egen prägel finns även möjlighet att mot en kostnad välja andra färger och ytskikt.
På Kvarnholmen bor du i en historiskt unik miljö, med närhet till matbutik, caféer, skolor och restauranger – allt omgärdat av hav och natur. En plats där gammalt möter nytt och framtidens stad växer fram, bara minuter från Stockholms city.
Det stilrena köket i L-form kombinerar praktiska arbetsytor med smart förvaring bakom släta vita luckor. Den grå bänkskivan bryter av elegant och skapar en modern känsla. Här finns allt du behöver: kyl/frys, integrerad diskmaskin, induktionshäll ugn samt inbyggd mikro. Samtliga vitvaror är noggrant utvalda vad gäller både prestanda och energisnål drift.
Den öppna planlösningen mellan kök och vardagsrum bjuder in till sociala sammanhang och rymmer både matbord och soffgrupp. Om så önskas kan en vägg väljas bort och skapa ett större vardagsrum. Härifrån kliver du rakt ut till en generös uteplats om ca 21 kvadratmeter med ett lugnt södervänt läge – en perfekt plats för odlingar, morgonkaffet eller sena sommarkvällar med vacker utsikt över vattnet.
Bostaden har ett badrum i harmoniska färger, med vitt kakel och grå klinkers, utrustat med kombimaskin, dusch och förvaring.
Lägenheten har två sovrum, varav det ena även passar fint som arbetsrum. Det större rummet erbjuder gott om förvaring med stor skjutdörrsgarderob.
Materialvalen i hemmet är genomgående noggrant utvalda för att skapa en tidlös och harmonisk känsla, med vitmålade väggar, fönsterbänkar i grå natursten och ekparkett i hela bostaden. För dig som vill sätta din egen prägel finns även möjlighet att mot en kostnad välja andra färger och ytskikt.
På Kvarnholmen bor du i en historiskt unik miljö, med närhet till matbutik, caféer, skolor och restauranger – allt omgärdat av hav och natur. En plats där gammalt möter nytt och framtidens stad växer fram, bara minuter från Stockholms city.







