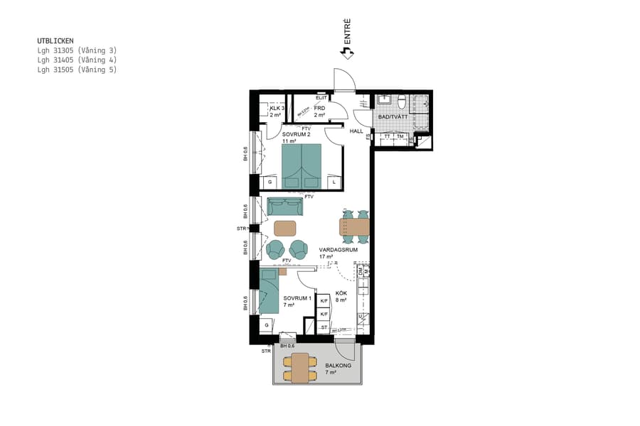
3 rok, 62 m²
Välkommen till denna trevliga hörnlägenhet med en balkong som vetter mot den lugna innergården. Lägenheten erbjuder en klädkammare samt ett praktiskt lägenhetsförråd för extra förvaringsmöjligheter. Dessutom finns möjlighet att välja till ett badkar för de som är med tidigt i projektet.
Det stilrena köket har vita köksluckor, en grå bänkskiva och ett stänkskydd av vitmålad vägg med en grå bakkantslist. Här finns även en induktionshäll med fyra plattor, ugn under hällen samt ett överskåp med integrerad mikro och diskmaskin.
Badrummet är ljust och fräscht med vitt kakel och grått klinkergolv. Här finns även tvättmaskin och torktumlare, en kommod vid tvättstället och en duschvägg i klarglas.
Lägenheten är belägen i det vackra skogsområdet Huvudsta Strandpark, endast 250 meter från Bällstaviken. Kvarteret Utblicken, där lägenheten ligger, utformas som ett långt lamellhus i olika höjder och kommer att erbjuda flera olika storlekar och planlösningar. Kvarteret präglas av ljusa och jordnära färger samt en stor innergård att njuta av.
Området har också mycket att erbjuda när det gäller service och bekvämlighet. På endast 10 minuters promenadavstånd finns Hemköp, vårdcentral, frisörsalong och gym i Huvudsta centrum. Sundbyberg centrum erbjuder flera populära restauranger, affärer och andra bekvämligheter inom 10 minuters cykelavstånd. Shoppingcentret Bromma Blocks på andra sidan Bällstaviken erbjuder ännu fler möjligheter för shopping, restaurangbesök och upplevelser.
För familjer finns det flera förskolor i närheten och närmaste grundskolor är Lilla Alby skola (F-6) samt Tallbackaskolan (F-9). Dessutom finns det gott om gymnasieskolor att välja mellan i både Solna och Stockholms kommun.
Kommunikationerna är utmärkta i Huvudsta Strandpark. Tunnelbanans blå linje ligger bara 8 minuters promenad bort vid Solna strand och 10 minuter bort vid Huvudsta. Flera busslinjer passerar genom området och på 15 minuter når du Sundbybergs pendeltågsstation samt tvärbanan. Det är också lätt att ta sig runt med bil då du har nära till Huvudstaleden som tar dig norr- eller söderut. För den som cyklar finns det cykelvänliga vägar längs vattnet som leder mot Pampas Marina, Karlberg och Stockholm city. Dessutom ligger Bromma flygplats på bekvämt avstånd.
Missa inte chansen att bo i denna fina lägenhet i Huvudsta Strandpark!
Det stilrena köket har vita köksluckor, en grå bänkskiva och ett stänkskydd av vitmålad vägg med en grå bakkantslist. Här finns även en induktionshäll med fyra plattor, ugn under hällen samt ett överskåp med integrerad mikro och diskmaskin.
Badrummet är ljust och fräscht med vitt kakel och grått klinkergolv. Här finns även tvättmaskin och torktumlare, en kommod vid tvättstället och en duschvägg i klarglas.
Lägenheten är belägen i det vackra skogsområdet Huvudsta Strandpark, endast 250 meter från Bällstaviken. Kvarteret Utblicken, där lägenheten ligger, utformas som ett långt lamellhus i olika höjder och kommer att erbjuda flera olika storlekar och planlösningar. Kvarteret präglas av ljusa och jordnära färger samt en stor innergård att njuta av.
Området har också mycket att erbjuda när det gäller service och bekvämlighet. På endast 10 minuters promenadavstånd finns Hemköp, vårdcentral, frisörsalong och gym i Huvudsta centrum. Sundbyberg centrum erbjuder flera populära restauranger, affärer och andra bekvämligheter inom 10 minuters cykelavstånd. Shoppingcentret Bromma Blocks på andra sidan Bällstaviken erbjuder ännu fler möjligheter för shopping, restaurangbesök och upplevelser.
För familjer finns det flera förskolor i närheten och närmaste grundskolor är Lilla Alby skola (F-6) samt Tallbackaskolan (F-9). Dessutom finns det gott om gymnasieskolor att välja mellan i både Solna och Stockholms kommun.
Kommunikationerna är utmärkta i Huvudsta Strandpark. Tunnelbanans blå linje ligger bara 8 minuters promenad bort vid Solna strand och 10 minuter bort vid Huvudsta. Flera busslinjer passerar genom området och på 15 minuter når du Sundbybergs pendeltågsstation samt tvärbanan. Det är också lätt att ta sig runt med bil då du har nära till Huvudstaleden som tar dig norr- eller söderut. För den som cyklar finns det cykelvänliga vägar längs vattnet som leder mot Pampas Marina, Karlberg och Stockholm city. Dessutom ligger Bromma flygplats på bekvämt avstånd.
Missa inte chansen att bo i denna fina lägenhet i Huvudsta Strandpark!















